装修设计:125平现代简约高级质感两居

文章图片

文章图片

文章图片

文章图片

文章图片

文章图片

文章图片

文章图片

文章图片
▲ 建筑面积125平 , 造价70万 , 项目坐标:深圳 , 完工时间:2021年11月 , 本案业主是一对审美较高、讲究生活质感的90后小情侣 , 家里还有一只大金毛 , 业主对家里整体感觉希望是干净整洁好打理的 , 不需要太复杂的设计 , 但也不希望太极简而没有精致感
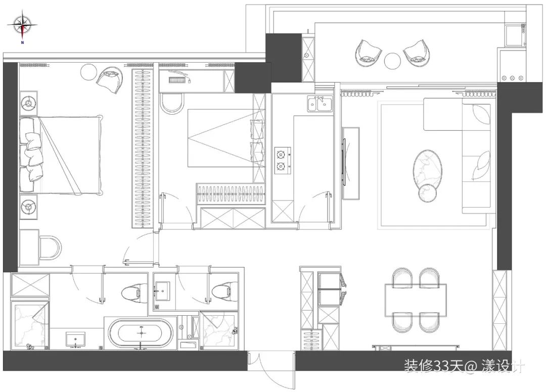
▲ 平面结构图
▲ 平面布置图
▲ 对原户型没有大拆大改 , 结合业主需求和色彩测试 , 以雾霾蓝为主色调 , 将欧式线条元素的精致感 , 与现代元素的时尚感相结合 , 运用护墙板、硬包、岩板、金属等多种材质 , 营造一个年轻时尚、高级有质感的空间
▲ 天花、背景墙、家具等线条元素随处可见 , 或极简或硬挺 , 赋予空间更多层次质感 , 令有限的空间延展出更大的尺寸感
▲ 雾霾蓝色护墙板搭配奶茶色皮质L型沙发、大理石+铁艺的组合茶几 , 每一处都透露着精致与时尚
▲ 电视背景墙别具匠心 , 采用岩板、护墙板、不锈钢等材质结合 , 搭配小株琴叶榕 , 与自然光影和谐共存 , 散发着悠然静好的气息
▲ 客餐厅以背景墙进行功能区域的划分 , 雾霾蓝自带复古滤镜 , 将周边一并卷入朦胧美感之中 , 文艺范儿十足
▲ 餐厅整体以高级灰为主基调 , 靠墙两侧是到顶收纳柜+局部展示柜 , 满足多种物品的收纳需求
▲ 纹理清晰的木饰面餐边柜 , 整体干净素雅 , 通透高级
▲ 餐厅望向客厅视角 , 透过大面积落地窗迎接自然光入住 , 光、影、材的相互映照 , 视觉上越发和谐 , 营造理性内敛的奢华感
▲ 厨房 , 浅灰色地砖搭配浅色纹理墙砖和白色橱柜 , 纯净的配色勾勒出简约大气的烹饪空间 , 素雅大气
▲ 多功能房 , 以翻板床+书桌形式满足多重功能需求
▲ 靠窗定制一整排书桌 , 顺沿梁位定制一竖排书柜 , 既增加收纳空间 , 也解决书桌受力问题
▲ 主卧 , 延续雾霾蓝的主色调 , 以整面硬包+不锈钢作为床头背景墙 , 一派沉稳静谧之感
特别声明:本站内容均来自网友提供或互联网,仅供参考,请勿用于商业和其他非法用途。如果侵犯了您的权益请与我们联系,我们将在24小时内删除。
