最近晒晒我家138㎡新房,亲手装修的5㎡阳台,成了小区的参观对象

文章图片

文章图片

文章图片

文章图片

文章图片

文章图片
这是我家的第二套房子 , 有了之前第一套的经验 , 这套装修显得轻车熟路 , 也没有了第一次谈装修就色变的心态 。 不过 , 装修确实是个累人的活 , 从水电到最终的软装搭配都需要自己去操心费力 。 不过 , 如果换一种心态 , 以学习的方式去装修的话 , 整个人也会变得非常愉悦 , 活到老学到老嘛 , 虽然不怎么用得上 , 但是至少要保证不被坑不是 。 新房138㎡ , 四室两厅一厨两卫的户型 , 个人呢非常喜欢日式的风格 , 所以装修就装成了日式 。 整个5㎡的阳台都是我自己亲自装修的 , 超级漂亮 , 装修后没多久就成了小区的参观对象 。
不多说了 , 进入正题了
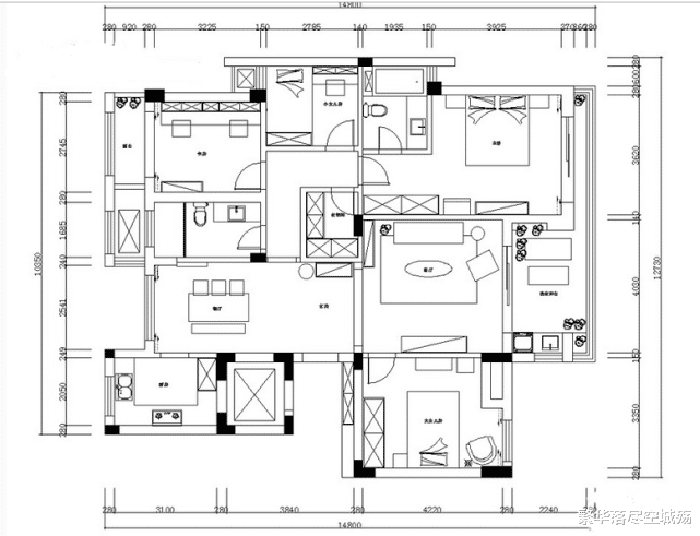
我家的户型布局图 , 左北右南 , 真正的南北通透户型 , 入户门在下边
餐厅 , 原木风的餐桌椅 , 餐桌旁做了木板隔断储物 , 简单而又不失美观
客厅 , 清一色白墙 , 用的白色乳胶漆 , 木质沙发餐桌椅和电视柜 , 沙发背景墙的画有人认识么 , 嘿嘿
客厅的另外一个角度
还是客厅 , 客厅旁边做了收纳柜 , 一排排的小格子 , 非常实用
书房 , 白色墙面、书柜、吊顶搭配原木风的地板和小凳子 , 喜欢的就是这么纯粹而自然的风格
主卧 , 原木的床头柜和床 , 背景墙上的画非常喜欢
大女儿的房间
小女儿的房间 , 小型榻榻米 , 房间小但是储物能力很强
亲手打造的阳台 , 算是我家后花园 , 小方砖用在这里实在是太漂亮了
小方砖很漂亮 , 价格不贵 , 但是贴起来比较麻烦 , 人工费比较贵点
【最近晒晒我家138㎡新房,亲手装修的5㎡阳台,成了小区的参观对象】阳台的另一边
特别声明:本站内容均来自网友提供或互联网,仅供参考,请勿用于商业和其他非法用途。如果侵犯了您的权益请与我们联系,我们将在24小时内删除。
