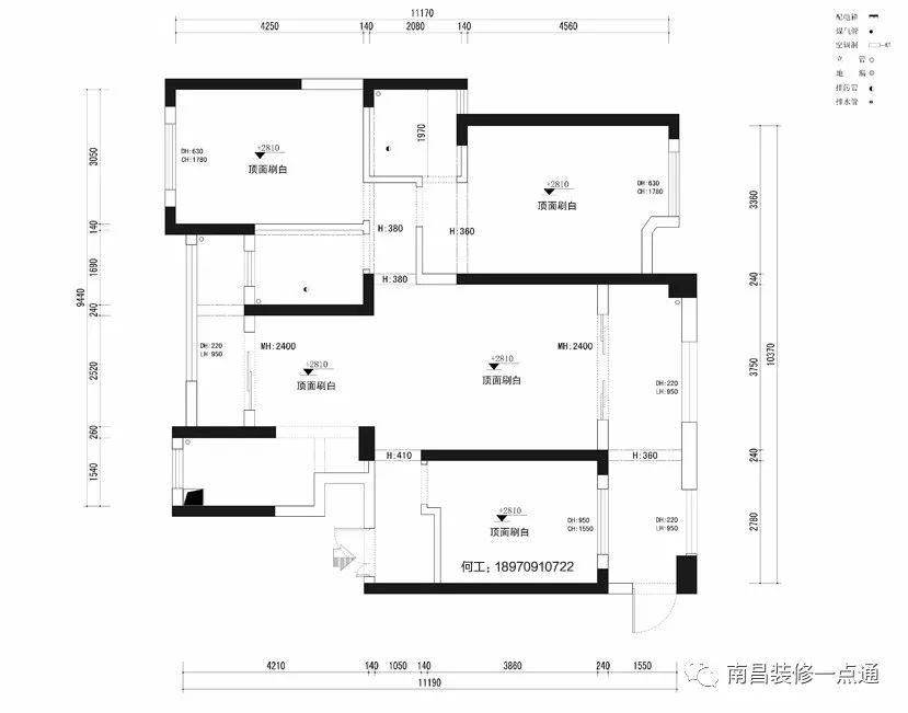
115平美式新古典, 南天金源三居室想装耐看点就这样设计!

115平美式新古典, 南天金源三居室想装耐看点就这样设计!

----115平美式新古典 南天金源三居室想装耐看点就这样设计!//----

115平美式新古典, 南天金源三居室想装耐看点就这样设计!

----115平美式新古典 南天金源三居室想装耐看点就这样设计!//----

115平美式新古典, 南天金源三居室想装耐看点就这样设计!

特别声明:本站内容均来自网友提供或互联网,仅供参考,请勿用于商业和其他非法用途。如果侵犯了您的权益请与我们联系,我们将在24小时内删除。