开间13米的四层农村自建房, 第二栋带架空层, 当车库用( 二 )

----开间13米的四层农村自建房 第二栋带架空层 当车库用//----

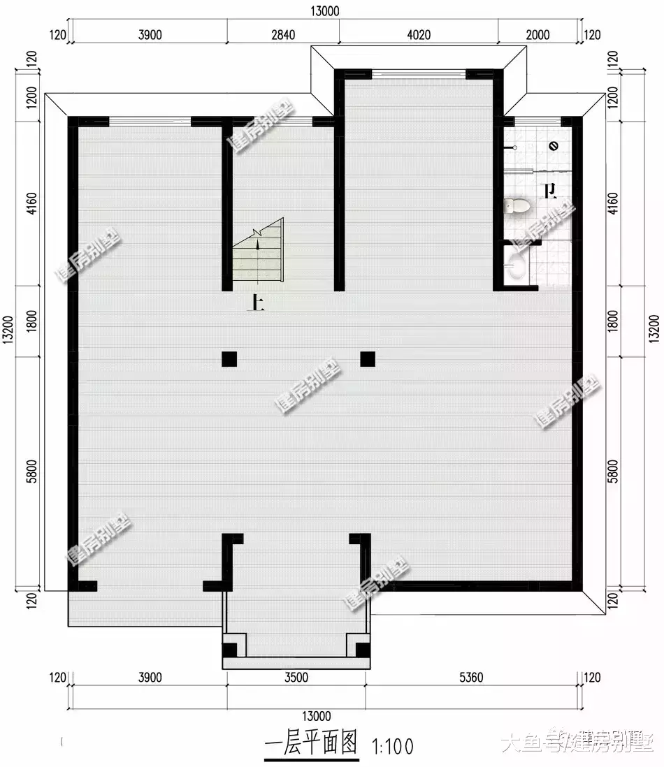
开间13米的四层农村自建房, 第二栋带架空层, 当车库用

----开间13米的四层农村自建房 第二栋带架空层 当车库用//----

开间13米的四层农村自建房, 第二栋带架空层, 当车库用

----开间13米的四层农村自建房 第二栋带架空层 当车库用//----

特别声明:本站内容均来自网友提供或互联网,仅供参考,请勿用于商业和其他非法用途。如果侵犯了您的权益请与我们联系,我们将在24小时内删除。