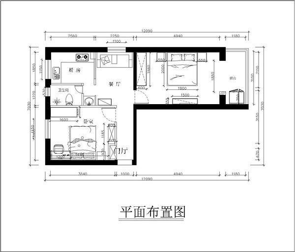
头一回看到没有客厅的房子, 这套65平的中式新房很不一般

头一回看到没有客厅的房子, 这套65平的中式新房很不一般

----头一回看到没有客厅的房子 这套65平的中式新房很不一般//----

头一回看到没有客厅的房子, 这套65平的中式新房很不一般

----头一回看到没有客厅的房子 这套65平的中式新房很不一般//----

头一回看到没有客厅的房子, 这套65平的中式新房很不一般

特别声明:本站内容均来自网友提供或互联网,仅供参考,请勿用于商业和其他非法用途。如果侵犯了您的权益请与我们联系,我们将在24小时内删除。