110㎡简约原木风, 清新大气, 温馨舒适
----110㎡简约原木风 清新大气 温馨舒适//----
----110㎡简约原木风 清新大气 温馨舒适//----
----110㎡简约原木风 清新大气 温馨舒适//----
----110㎡简约原木风 清新大气 温馨舒适//----
----110㎡简约原木风 清新大气 温馨舒适//----
----110㎡简约原木风 清新大气 温馨舒适//----
----110㎡简约原木风 清新大气 温馨舒适//----
----110㎡简约原木风 清新大气 温馨舒适//----
----110㎡简约原木风 清新大气 温馨舒适//----
这个房子的套内面积大概110平米 , 整体以简单舒适的空间 , 加入原木简约的柜体与软装搭配 , 整体暖系的墙面空间 , 加上细节绿植与彩色的软质点缀 , 营造出一个温馨舒适的画面 。
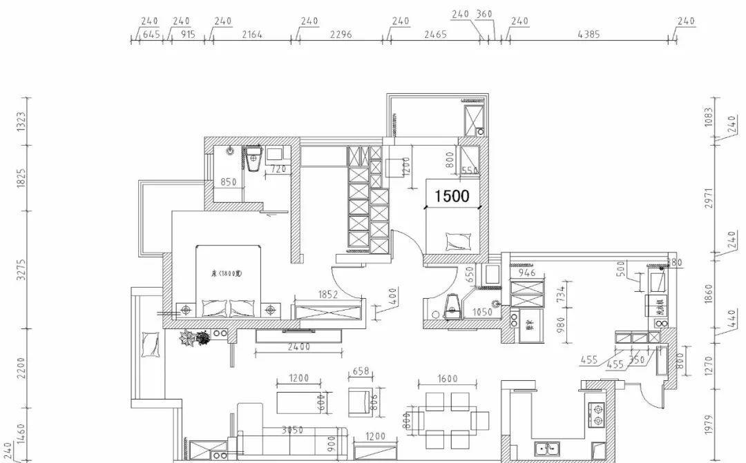
平面布置图
玄关
▲原本较大的入户花园 , 在大门靠窗之间做一个矮柜+高柜的鞋柜 , 高柜隔断出洗衣区与换鞋凳 , 而矮柜则是作为玄关与晾衣区的隔断 , 保持透光的基础又独立的空间功能 , 实用优雅好自然 。 在换鞋后方装上挂钩 , 侧边的墙面也装了一面全身镜 , 整个空间简洁实用的氛围 , 令人惬意舒适 。
客厅
▲沙发墙是暖灰色墙脚+白色墙身的双色搭配 , 在上方墙身挂上一组简约的装饰画 , 搭配灰色布艺沙发与精致的软饰 , 整个空间充满了简约舒适的气息 。
▲沙发与茶几区域垫上了地毯让居家时光更加舒适 , 搭配原木质圆角茶几 , 简简单单的布置 , 处处都是舒适的细节设计 。
特别声明:本站内容均来自网友提供或互联网,仅供参考,请勿用于商业和其他非法用途。如果侵犯了您的权益请与我们联系,我们将在24小时内删除。
