老公不听劝非要给厕所装“两个门”,完工后发现还挺实用,晒晒

文章图片

文章图片

文章图片

文章图片
我和老公是裸婚家庭 , 在上海长宁打拼 。 都是打工一族 , 不过老公这几年的事业越来越好了 , 我们也得以在去年的时候 , 结束7年租房生涯 。 买下人生第一个真正的家 , 这是一套62㎡建筑面积的小宅 , 实际上只能做一室一厅 。 装修我们是第一次经历 , 预算不够 , 空间有限 。
请不起专业的设计师 , 我们找了熟人装修 , 出图纸 , 设计都是我和老公绞尽脑汁想出来的 , 前后拆旧重装花了接近四个月时间 , 当初设计的时候 , 老公坚持给厕所装“两个门” , 我刚开始不理解 , 被老公气个半死 , 完工后发现还挺实用 , 忍不住晒晒 。
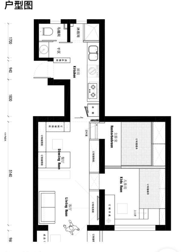
原始户型图弄不见了 , 只有设计平面图了 。 我家的户型我也说不上来 , 倒是有点像个大拇指 , 连亲戚都说我家的户型奇葩……废话不多说 , 一起看看现在的实景吧 。
用于空间狭小 , 入户这里根本没有特定的空间装鞋柜 , 所以只好放了一个半高的靠墙鞋柜 , 厚度仅20cm ,, 虽然小了点 , 但可以很好的解决鞋子的收纳问题 。
进门后便是我们的小客厅了 , 房子的层高并不高 , 但是有不少的房梁很难看 , 所以我们拉平了吊顶 。 而且我们也没有装什么主灯 , 都是点光源的筒灯 , 这样整个客厅的采光也没有死角 。
右边是整面墙的柜子 , 柜子用白色漆涂刷 , 很简约 , 不会有大面积柜子带来的压抑感 。 只有挂电视机的位置 , 预留了凹槽 , 看上去特别简约实用 。
餐厅这里装了L型到顶的转角餐边柜 , 整体是白色加木色的设计 , 既实用又好看 。
厨房的面积紧凑 , 所以冰箱、灶台和水槽只能并排摆放了 , 算是一个半开放式的厨房 , 因为通向客厅的位置装了一个推拉门 , 可以有效的隔绝油烟 。
厕所 , 其实也就是鞋柜对面ed这个区域 , 本身厕所的布局其实不是这样的 , 左边一半是原来的厕所 , 右边一半属于厨房的空间 , 现在改动之后 。 老公坚持给厕所装“两个门” , 他说是为了方便使用 , 最开始我还觉得多此一举 , 搞的有点像日本的房子似的 。
后来完工入住才知睿智 , 这么装其实就是三分离厕所 。 一个人洗漱 , 一个人上厕所 , 还有一个人可以淋浴洗澡 。 一家三口互不干扰 。
【老公不听劝非要给厕所装“两个门”,完工后发现还挺实用,晒晒】本文由齐家小编编辑 , 如有侵权 , 请联系删除!
特别声明:本站内容均来自网友提供或互联网,仅供参考,请勿用于商业和其他非法用途。如果侵犯了您的权益请与我们联系,我们将在24小时内删除。
