南村|好消息!南村这所幼儿园要扩建
近日 , 官网发布番禺区南村镇樟边幼儿园扩建建设工程项目招标公告 。
最高投标限价(万元):1174.63961
日历天数:150天
此次拟建一幢4层高的教学楼 。
文章图片
总平面图
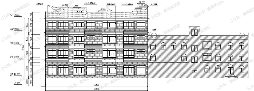
文章图片
立面图
文章图片
剖面图
项目位于番禺区小塘坊新区大街5号
文章图片
区位示意图
文章图片
项目位置图
广州市番禺区南村镇樟边幼儿园建于2005年9月 , 是一所全日制村集体办幼儿园 , 幼儿园位于南村镇樟边村小塘坊大街5号 。 全园占地面积3463平方米 , 建筑面积2065平方米 , 目前开设9个教学班 , 其中3个大班、3个中班、3个小班 。
文章图片
文章图片
幼儿园园舍环境整洁、优美、安全、舒适 , 同时配备现代化的室场和教育教学设备 , 更有一支年轻、团结、进取的领导班子和师资队伍 , 幼儿园以优质的服务为每一名孩子提供高品质的教育 , 是孩子健康成长的乐园 。
文章图片
文章图片
【南村|好消息!南村这所幼儿园要扩建】
文章图片
- 河南村民挖野菜挖到牙雕萝卜,博物馆上门,赞成捐募后取得800元
- 征信在哪里打印 个人征信去哪里查询打印
- 广东以色列理工学院是民办吗?广东以色列理工学院是几本
- 好消息!八月财源滚滚的星座TOP3
- 许妈迎来好消息,潘律的祝福暗藏深意:一家团圆不远了
- 就业创业证几天能拿到 就业创业证多久能下来
- 东方创业新浪 东方创业利好消息
- 9月20日星座运势预报:双鱼迎来好消息,狮子陷入被动
- 叫炸天帮的小说是什么 炸天帮是什么小说来着
- 测试 | 近期,你会收获什么好消息?
特别声明:本站内容均来自网友提供或互联网,仅供参考,请勿用于商业和其他非法用途。如果侵犯了您的权益请与我们联系,我们将在24小时内删除。
