造型怪异的私人住宅:源自一块石头,用现代设计手法构筑空间

文章图片

文章图片

文章图片

文章图片

文章图片

文章图片

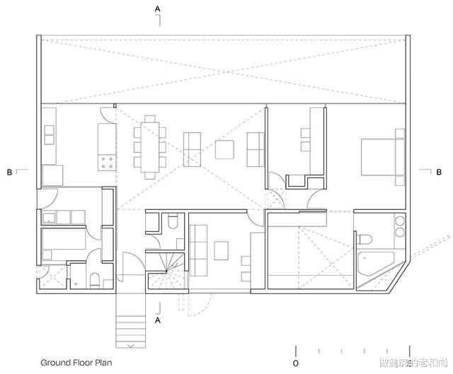
文章图片

文章图片

文章图片

文章图片

文章图片

每一个事物出现都有其特定的环境所决定 , 而每一个想法总会收到某一个东西的启发 , 从来没有无缘无故的设计 。 不管你的出发点是一个具体的事物、一件印象深刻的事件、抑或是某个独特的情绪 。 它们都可以作为设计的起点 , 在这个源头的发散下 , 进行有效的变换、思考直到空间的形成 , 我想这便是设计带给人的价值 。 比起空洞的元素、模仿甚至是抄袭 , 一个看似毫无意义的源头也来得更加有意义 。 今天小编就要给大家介绍一个造型怪异的私人住宅 , 看它是如何通过一块普通的石头 , 通过现代设计的手法构筑惬意的家居空间 。
建筑外观
该项目位于智利 , 这个建筑的目的在于通过简洁纯粹的手法来重新诠释传统住宅 , 这个想法乍一听好像特别的玄乎 , 其实深层次的意思 , 是想要通过当下符合现代生活方式的空间来匹配作为空间使用者的人 。 不管经历多久的时间 , 人总是空间使用者的主体 , 而随着时代的发展 , 技术的进步 , 或者说人的欲望 。 都在不断变化 , 而传统住宅往往已经无法满足现代人的使用需求 , 这个时刻的改变是无法阻挡的 。
道路看向建筑
【造型怪异的私人住宅:源自一块石头,用现代设计手法构筑空间】
建筑局部
建筑外观
建筑外观
建筑从外观上看 , 对于大多数人来说 , 明显显得尤其怪异 , 凸起的方盒子体量 , 倾斜的屋顶和那个尖锐的角 。 我想在很多人眼中看到的第一印象 , 可能并不会觉得这是一个住宅 。 但存在便是道理 , 建筑之所以能够建造出来 , 至少该住宅的主人是满意的 。 而我们不会过多地探究它是否适合作为一个住宅 , 因为结果已经显示它就是 。 我们想要探讨其设计背后的想法 , 看它是如何成就现在的模样的 , 或许来得更加有意义 。
特别声明:本站内容均来自网友提供或互联网,仅供参考,请勿用于商业和其他非法用途。如果侵犯了您的权益请与我们联系,我们将在24小时内删除。
