50㎡美式住宅,安静优雅的轻奢之家,小空间也有满满的仪式感

文章图片

文章图片

文章图片

文章图片
今天要给大家介绍的是一户只有50㎡的户型 , 房子的空间虽然不大 , 但是采用优雅华丽的美式风来营造出浪漫舒适的居住氛围 , 业主给自己准备了一个惬意、温馨的小窝 。
此案例最终呈现的效果 , 让你意想不到 。 户型只有50㎡ , 室内还挺宽敞的 , 而且很适合喜欢温馨有格调 , 浪漫又精致的用户哦!
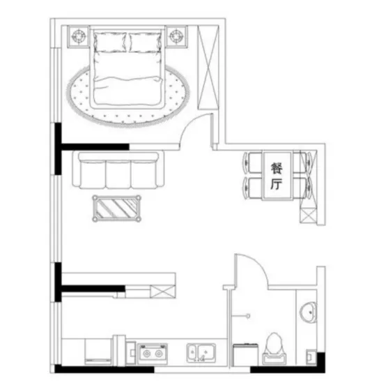
平面图
客厅
进门看到客餐厅是共处一室的 。 餐厅区域与客厅通过天花板吊顶的不同铺设 , 来区分的 。 这样客餐厅均有各自的装修风格 , 不至于使空间千篇一律 , 扩大了空间视觉面积 , 也增强了设计感 。
客厅整体以棕咖色为主调 , 这样能营造出宁静、优雅的氛围 。 黄色沙发及暖色光源 , 又给空间营造了温馨、浪漫的感觉 , 使得空间不至于压抑 。 黄色的多层次使用 , 中和了棕咖色带来的沉闷感 。
餐厅
餐厅区域除了餐桌椅是黑色的 , 其他面积以白色为主 , 加上吊灯及几个筒灯的照射 , 餐厅明亮了很多 。 为了满足更多的收纳 , 餐桌的另一侧没有摆放餐椅 , 而是打造了一个开放式收纳柜 , 中间部分铺上柔软的垫子 , 即可当做餐椅 。 柜子上下方可以存放物品 。 这样的设计很巧妙 , 而且柜子也没有显得很突兀 , 与整个环境很融合 。
厨房
【50㎡美式住宅,安静优雅的轻奢之家,小空间也有满满的仪式感】厨房是一字型 , 一侧设置了台面 , 在另一侧空间比较窄 , 也打造了台面 , 可以增大储物空间 , 塞得下冰箱 , 还可以放各种调料干果类食物 。
卧室
卧室的风格与客厅相呼应 。 大面积阳台可以给房间很好的采光 。 床头柜一侧 , 一整面墙的收纳橱柜 , 可以满足业主的收纳需求 , 而且橱柜是白色的 , 与整个空间也毫无违和感 。
卫生间
卫生间面积不大 , 但洗漱台、淋浴等一应俱全 , 空间不会显得很拥挤 。 放了洗衣机 , 这样清洗衣物很方便 。 卫生间做了腰线设计 , 既美观 , 又经济实用 。
本文内容来源于网络 , 由齐家小编编辑 , 侵权删 , 谢谢!
特别声明:本站内容均来自网友提供或互联网,仅供参考,请勿用于商业和其他非法用途。如果侵犯了您的权益请与我们联系,我们将在24小时内删除。
