
文章图片

文章图片

文章图片

文章图片

文章图片

文章图片

文章图片

文章图片

文章图片

把对生活的热爱转为现实 , 最实用的才是最实际的 , 彰显北欧之美
业主一个非常热爱生活的人 , 喜欢自然的美好 , 也喜欢来自现代的潮流气息 , 但是更注重生活的实际 , 不崇尚华而不实 , 希望拥有更加丰富深刻的内涵与寓意 。 在改造之初业主就明确的提出来想要一个轻松的氛围 , 在家里可以感受惬意的轻松时光 , 拜托忙碌工作带来的疲惫与压力 。
房屋户型:两室
房屋面积:125平方米
装修预算:30万
设计师:李文伟
主要建材:线板、木皮、喷漆、大理石、黑铁漆、铁件、玻璃、木地板、壁纸
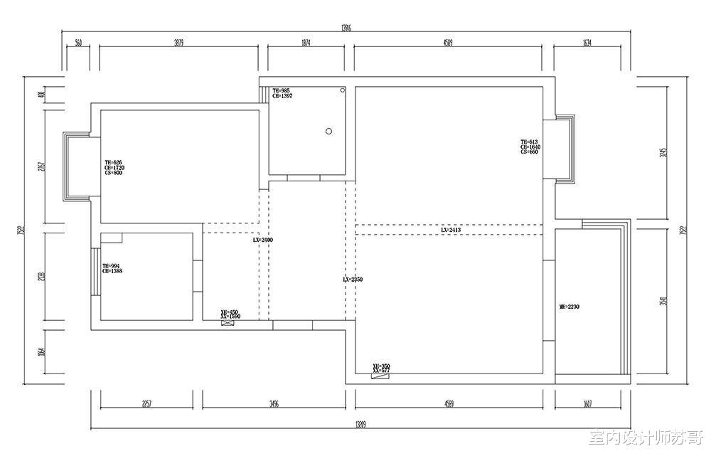
【户型图】
户型上中规中矩 , 没有比较明显的缺陷 , 但是在细节上存在较多的不足 。 因为业主希望把室内的空间进行重新布局 , 舍弃之前很多华而不实的设计 , 代替选择用最简单的元素 , 来重新赋予空间一个全新的面貌 。 设计师从实地出发 , 在业主的高要求之上又不断地提升了整个空间的质量和质感 。
【厨房】
设计重点:经典小白砖渲染轻松烹饪区
【把对生活的热爱转为现实,最实用的才是最实际的,彰显北欧之美】厨房选用了经典百搭的小白砖重新铺设了背景墙 , 让人眼前一亮 , 感受到足够开阔和清透的烹饪空间 。 定制橱柜和吊柜在满足实用需求的基础上又让整个空间的风格实现了和谐一致 。
【餐厅】
设计重点:恰到好处的色彩搭配
转身进入到餐厅首先可以看到的是充满北欧风情的蓝色餐凳 , 舒适的原木材质让空间尽显自然的清新与环保 , 一边的超薄鞋柜可以满足收纳需求 , 又不会给空间带来笨重感 。 大面积的白色让每一个角落都格外的清透和明媚 。
每日更换的鲜花枝让餐厅充满了生命活力 , 一捧绽放的鲜花用最自然的语言 , 诉说着生活的希望和欢乐 。
特别声明:本站内容均来自网友提供或互联网,仅供参考,请勿用于商业和其他非法用途。如果侵犯了您的权益请与我们联系,我们将在24小时内删除。
