王小妞情景家(07):初见情景平面方案
----王小妞情景家(07):初见情景平面方案//----
----王小妞情景家(07):初见情景平面方案//----
----王小妞情景家(07):初见情景平面方案//----
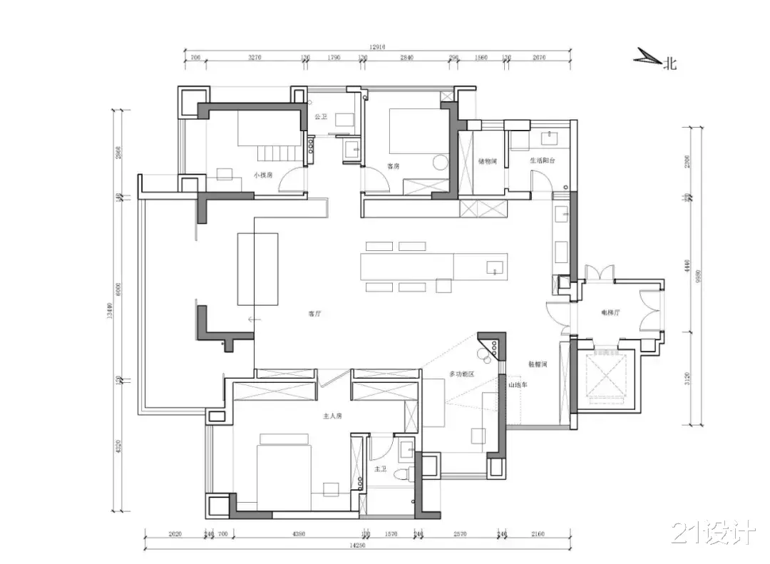
我们的第一稿平面规划方案出来了
这里 , 我们创造了几大不一样的生活情景 。
首先 , 这是一个可以随意奔跑的家;第二我们实现了厨房与餐厅最大化使用;第三客餐厅完全共享与渗透;第四露台得到了充分的使用 。
当我正式与设计师们碰撞方案时 , 才真正地意识到每一份不同的平面图 , 确实能带给客户不同的生活方式 。
而平面规划 , 反映出了设计师对生活的看法以及对家庭关系的认知 。
记得第一次王小妞与他先生一起过来沟通平面规划 。 她先生对于厨房规划眼前一亮 , 非常认可这个布局 , 而王小妞则非常喜欢客厅处的大胆构思 。
她仿佛能想象到她儿子在空间中随意地奔跑以及每个角落呈现出点点滴滴的爱意 。 我们开始从玄关入手 , 一点一滴地把空间情景描述了一遍 。
入门左手边 , 是生活玄关处 , 两辆山地车可挂于墙上 , 而左右较为隐蔽的墙面可设计一整排鞋柜 , 方便日常使用 。
挂山地车的墙面上还有一长洞口 , 方便多功能房与玄关处的互动(比如说 , 在功能房工作的先生能够第一时间看到刚回家的小朋友或其他家人 。 )
厨房依然实现了中西厨的功能 , 而大面积的餐厅一体化空间能很好地满足王小妞平常时的会客与会餐 。 很好的一点是这个区域可以360度地与公共空间进行互动而非自我埋头苦干 。
熟悉我们的很多朋友知道在我们很多作品中 , 都有大长桌 , 而很多过来找我们的客户也非常希望自己的家中能有这样的空间 。
因为大长桌可以带来家里不少于20种生活情景 。 我们通过观察统计 , 发现家里常就餐不超于六人的空间非常合适长桌 , 而大圆桌更适合超过6个以上的常态使用 。
在平面规划当中 , 其实不适宜过多地考虑预算 。 但在规划中 , 我们需清楚哪些该更简单 , 哪些该用更好的物料来辅助情景的传达 。 在这套规划当中 , 我想起了供道家居近期使用得非常好的零腻子墙面工艺以及人见人爱的高性价比实木门 。
所以 , 为什么说设计师的思维必须是立体的?为什么我说私宅设计不是视觉艺术 , 而是实用生活艺术呢?举两个非常简单的例子你就会明白 。
在很多套餐式家装公司里 , 他们的使命就是快速地把需推销的产品推给客户就是完成使命 。 所以 , 在他们脑袋素材库中 , 会装着A材料 , B材料 , C套餐及D套餐 , 他们很难会从生活本身出发 , 去思考这些材料是否合宜 。
而对于另一部分没有时间去研究物料的设计师而言 , 平面时也会给很多固定化思维所限制 。 比如说想起曾经见过的大理石餐台或者一套一直想用的沙发(当然这类型设计师想出作品 , 当遇到好的业主 , 他们思维素材库中也会跳出一些零星的素材)
特别声明:本站内容均来自网友提供或互联网,仅供参考,请勿用于商业和其他非法用途。如果侵犯了您的权益请与我们联系,我们将在24小时内删除。
