业主哭了:这就是开发商所谓的精装修,一进门就想骂娘!

文章图片

文章图片

文章图片

文章图片

文章图片
房子是120平米 , 买的时候一平米2万带精装修 , 现在降到了1万7 。 心里本来就挺不爽 , 等房子下来了一看 , 更是恼怒 。 买精装修房子本来就是图个方便 , 哪儿知道交房的时候 , 很多地方都发霉了 , 我这可是高层啊 , 可见里面的隐蔽工程做的有多么稀烂!装修真是后悔 , 为什么有人会喜欢精装修?真是又懒又傻又有钱还不怕甲醛!
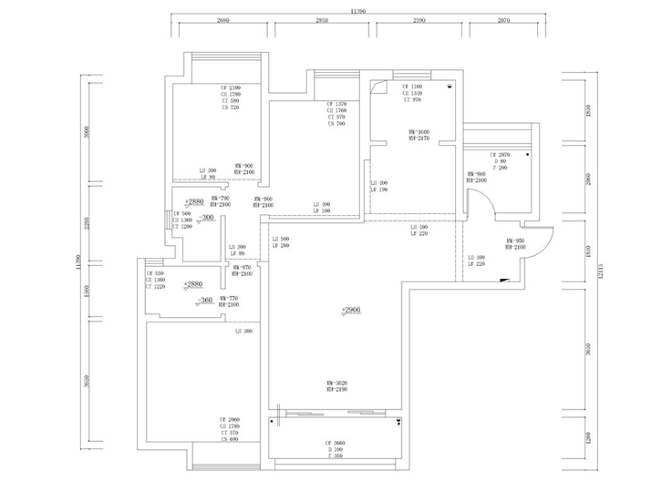
户型图是这样 , 户型倒还可以 。
平面布置图
家里很多墙壁都有霉斑了 , 和物业交涉多次无果 , 感觉这样东补一下西补一下也不是个事 , 就自己重新把墙面搞了一下 。
客厅看餐厅 , 壁纸甲醛大 , 不适合大面积用 , 所以这边果断花钱刷了个淡蓝色 , 效果还凑合 , 灯具什么的也是我自己买的 。
这是房间了 , 也刷了天蓝色 , 吊顶走的是石膏线条 。
厨房的橱柜看上去很廉价 , 开发商还说都是品牌货 , 可很多产品型号网上一搜 , 根本找不到 。
卧室 , 这是主卧进门有个卫生间 , 铝合金门 , 真是low到爆棚啊 , 实木门多高大上 。
门、瓷砖感觉都是市面上最便宜的 , 意料之中的了;
【业主哭了:这就是开发商所谓的精装修,一进门就想骂娘!】其实 , 精装房不是不好 , 但在中国开发商手里基本就变成坑爹货了 , 关键是装的再差 , 也没地方说理 , 唉 , 下次买房说什么也不考虑精装房了 。
特别声明:本站内容均来自网友提供或互联网,仅供参考,请勿用于商业和其他非法用途。如果侵犯了您的权益请与我们联系,我们将在24小时内删除。
