
文章图片

文章图片

文章图片

文章图片

文章图片

文章图片

文章图片

文章图片

文章图片

文章图片
基本信息
室内面积:35平米
房屋户型:2室1厅1厨1卫
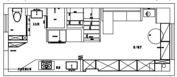
房屋户型图
一层户型图
二层户型图
玄关
【35㎡改出2室1厅,卫生间3分离,收纳翻倍,这小户型凭什么这么猛?!】为了使空间不拥堵 , 玄关柜做了切面处理 。 地面用瓷砖进行功能分区 , 减少将灰尘带入室内 。
厨房做足了吊柜和地柜 , 收纳绰绰有余;空间层高有限 , 双色橱柜门可以缓解压抑感 。
台盆区的墙面增加了一组挂钩 , 最大化地保持台面洁净 , 日常拿取也非常方便 。
卫生间
在空间有限的情况下 , 也极力实现了卫生间的三式分离 , 即使三人同时使用 , 也能互不干扰 , 生活更加从容有序 。
洗手台外置 , 利用镜柜和台盆柜保障日常收纳 , 柜体底部镂空减少了卫生死角 。
客厅
大面积的白色墙面和原木色地板 , 让空间视觉感得到释放 , 客厅采光充足 , 室内运用排布有序的顶灯增加光源 。
布置一组深空灰沙发床 , 必要时可以拉出来让朋友留宿 。
电视柜不仅收纳力爆表 , 内里亦是大有千秋 , 给三只猫做了三个联排别墅 , 一楼放置猫砂 , 设置了亚克力门板 , 进出自如 。
电视柜靠阳台一侧做了开放格 , 可以放置喜欢的书籍和摆件 , 偶尔借着阳光阅读片刻 , 或放空思绪 。
电视左边的两扇柜门里 , 隐藏着洗衣机和烘干机 , 让空间随时保持着视觉的统一性 , 便捷度也丝毫不打折 。
阳台卡座下都是收纳空间 , 这里可以是书桌 , 也可以是餐桌 , 多功能使用 。
楼梯做了隐藏灯带 , 生活的细节仪式感 , 很有必要 。 选择透光性最好的玻璃栏杆 , 保持空间通透度 。
二楼又是另一番天地 , 在卧室的墙面上 , 增设了一面采光窗 , 保持空间的通透感 。
特别声明:本站内容均来自网友提供或互联网,仅供参考,请勿用于商业和其他非法用途。如果侵犯了您的权益请与我们联系,我们将在24小时内删除。
