迷你老房子经过爆改,不仅拥有了超大的厨房,还满足了业主的追求

文章图片

文章图片

文章图片

文章图片

文章图片
【迷你老房子经过爆改,不仅拥有了超大的厨房,还满足了业主的追求】

文章图片

文章图片

文章图片

文章图片

文章图片

文章图片

文章图片
\">一套仅40平米的一居室 , 超级迷你的小户型格局 , 常住的夫妻二人 , 有着自己的想法和需求 。 女主一位是自由职业者 , 男主是有着金融的脑袋 , 对生活的追求、和隐私有着超高的追求 。
迷你老房子经过爆改 , 不仅拥有了超大的厨房 , 还满足了业主的追求
这是一套70年代 , 上了一定年纪的老房子 , 夫妻二人需要有足够空间和完美的厨房 , 在这个户型当中 , 经过改造后 , 有着功能区域的格局 , 不仅有大的厨房 , 还有增强了办公 , 生活空间 , 足够的收纳空间 , 和朋友聊天的地方 , 正所谓一体化设计 。
房屋户型:两室
房屋面积:40平方米
装修预算:20万
设计师:李文伟
主要建材:铁件、石材、人造石、系统柜、木作、油漆、玻璃、仿清水模漆
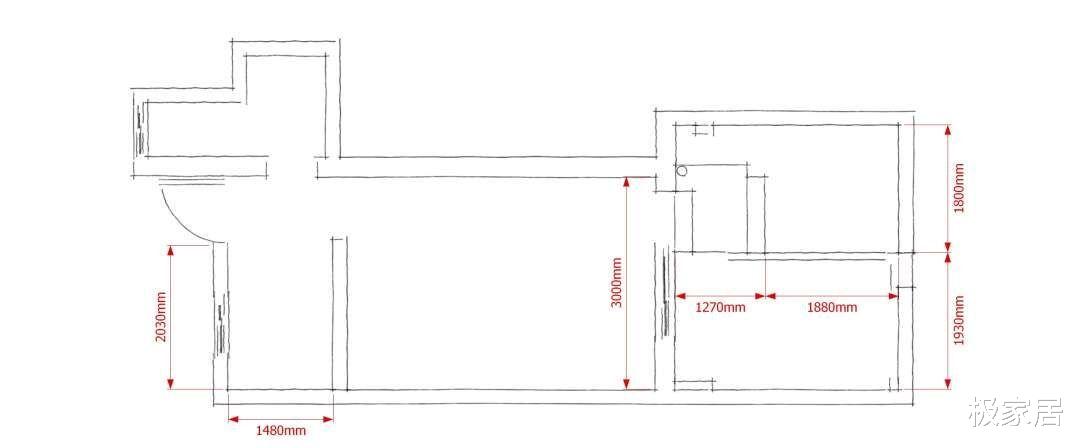
【户型图】
1.整体的格局面积小 , 一字型的空间格局 , 又有不规整的楼梯 , 为解决这个问题 , 把其一排的储物柜 , 解决了所有的功能 , 同时增加了收纳空间 。
2.卫生间的空间实现了干湿分离 , 使得空间格局优化 , 保护
3.使用者需要有大的厨房 , 于是将厨房移动到了天井 , 让整个的空间得到了释放和自由 。
【客厅】
特别声明:本站内容均来自网友提供或互联网,仅供参考,请勿用于商业和其他非法用途。如果侵犯了您的权益请与我们联系,我们将在24小时内删除。
