
文章图片
【山东业主因不满精装房,花费半年多进行改造,效果出乎意料】

文章图片

文章图片

文章图片

文章图片

文章图片

文章图片

文章图片

文章图片

文章图片

文章图片

文章图片

文章图片

文章图片

文章图片

文章图片

业主入手的这套房子是精装房 , 但是业主觉得风格过于古板而且没有自己的特色 , 所以找到设计师希望能够重新把这个家改造一下 , 打造出一个更具家的温度和魅力的空间 。
山东业主因不满精装房 , 花费半年多进行改造 , 效果出乎意料
房屋户型:两室
房屋面积:128平方米
装修预算:30万
设计师:李文伟
主要建材:铁件、石材、人造石、系统柜、木作、油漆、玻璃、仿清水模漆
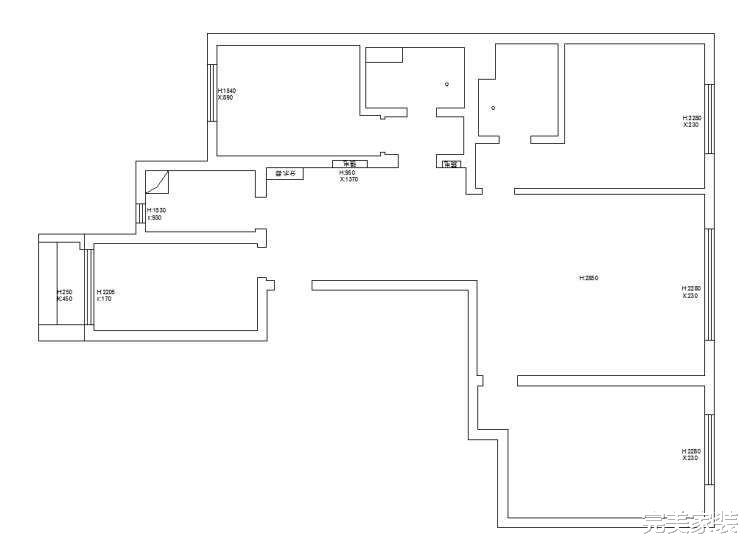
【户型图】
房屋户型比较的规整 , 没有多余的空间 , 但是空间布局非常不合理 , 使用起来有很多的不方便 。 整体的采光和通风也比较差 , 主卧的面积更是非常狭小 。
特别声明:本站内容均来自网友提供或互联网,仅供参考,请勿用于商业和其他非法用途。如果侵犯了您的权益请与我们联系,我们将在24小时内删除。
