
文章图片

文章图片

文章图片

文章图片

文章图片

文章图片

文章图片

文章图片

文章图片

文章图片

文章图片

文章图片

文章图片

文章图片

文章图片

要改造的这套房子位于成都的繁华商圈 , 作为一套质量经过考量的老房子 , 结构上基本不能进行改动 , 业主又是一个对生活品质要求非常的高的人 , 结合业主的需求和实际的情况 , 设计师通过软装的搭配 , 和各种精心挑选的高质量家具元素来为业主搭配出一个极具质感的多功能之家 。
爆改市中心的三室老房子 , 过道轻松变餐厅 , 想法真是独特
房屋户型:三室
房屋面积:150平方米
装修预算:40万
设计师:李文伟
主要建材:铁件、石材、人造石、系统柜、木作、油漆、玻璃、仿清水模漆
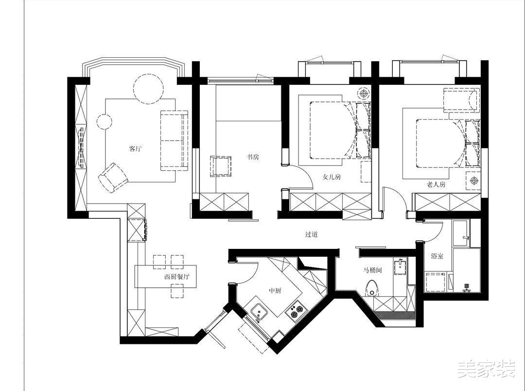
【户型图】
考虑到房间内部大部分都是不可拆卸的承重墙 , 所以设计师只能把重点放在空间布局上 , 通过灵活的搭配和各种元素的选择 , 让空间更具生动的氛围感和高级感 。
特别声明:本站内容均来自网友提供或互联网,仅供参考,请勿用于商业和其他非法用途。如果侵犯了您的权益请与我们联系,我们将在24小时内删除。
