农村别墅成为潮流,30万就能够住上别墅?
----农村别墅成为潮流 , 30万就能够住上别墅?//----
----农村别墅成为潮流 , 30万就能够住上别墅?//----
----农村别墅成为潮流 , 30万就能够住上别墅?//----
----农村别墅成为潮流 , 30万就能够住上别墅?//----
----农村别墅成为潮流 , 30万就能够住上别墅?//----
曾经 , 农村的人都挤破头想进城 , 如今 , 城市里的有钱人开始考虑回农村养老 , 不得不说 , 这真是一个轮回的怪圈 。
曾经 , 装小白以为别墅是土豪的标配 , 随着在北京漂泊才知道 , 原来四合院才是土豪的标配了 。
曾经 , 装小编以为别墅的价格都是要几百上千万的 , 随着对装修行业的了解才知道 , 原来几十万就能装修出一个别墅了 。
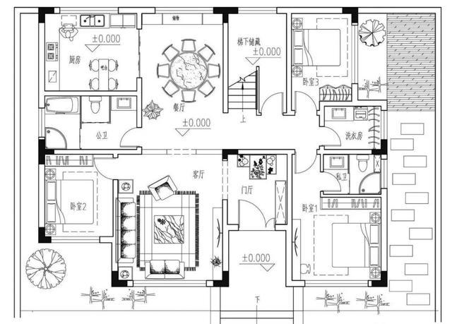
比如装小白网上看到的这个户型:
这这样的别墅已经开始频繁的出现在农村当中了 , 大家可以看看这一层的设计 。
第二层的设计也是非常的不错 , 相信这是很多人都喜欢的户型吧 。
随着农村别墅潮流的崛起 , 越来越多的别墅花样层出不穷 , 装小白再带着大家看看网上看到的另一套别墅设计 。
这套别墅一层有餐厅和客厅 , 还有两个卫生间和两个卧室 , 只是一层就能满足人们的生活需求 。
别墅的二层主要就是为了休息存在的了 , 所以有书房 , 有卧室 , 还有阳台 , 能够住上很多人了 , 空间 得到了充分的利用 。
这样的别墅相信很多人看到了都喜欢吧 , 根据装小白粗略的估算 , 仅仅是硬装的话应该不会超过30万 。
所以装小白就想在晚年回到农村在这样的农村里面安度晚年了 , 不知道大家怎么看待这样的房子呢?
特别声明:本站内容均来自网友提供或互联网,仅供参考,请勿用于商业和其他非法用途。如果侵犯了您的权益请与我们联系,我们将在24小时内删除。
