
文章插图
电气部分:
1、防雷接地
工作接地:配电间接地,防护值班室接地,电站发电机的接地 。
保护接地:设备房接地,金属线管,电气金属线管,金属桥架(电缆槽盒)接地,金属电动门(电动防火卷帘门)接地,机械车位的接地 。
防静电接地:箱接地,输油管接地,卸油车接地 。
屏蔽接地:防门的金属门框,救护工程,指挥工程的结构钢筋网,油网滤尘器的接地,人防风水电等预埋管接地等 。
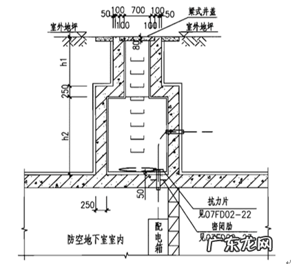
基础接地:

文章插图
1.工作接地及弱电接地接地电阻小于1欧姆 。
2.每扇防密门门框角铁用25*4热镀锌扁钢与底板上层钢筋电焊,此上层钢筋与焊接钢筋网应至少有一点电焊连接 。如下图:
密闭门:

文章插图
3.人防配电箱接地引上线,40×4热镀锌扁钢直接引上与配电箱接 。
4.设备房保护接地用,由接地网引上-40×4热镀锌扁钢至距地0.3M处预埋镀锌钢板焊接 。
5.柴油发电机房保护接地用,由接地网引上-40×4热镀锌扁钢至距地0.3M处预埋镀锌钢板焊接 。
6.金属管道等接地用,由接地网引上-40×4热镀锌扁钢至距地0.3M处预埋镀锌钢板焊接 。
7.电站燃油设施防静电接地用,由接地网引上-40×4热镀锌扁钢至距地0.3M处预埋镀锌钢板焊接 。
2、防密措施
人防预埋管

文章插图
预埋管做法:

文章插图

文章插图
制作预埋管注意要点:
1、要采用热镀锌钢管,口部密闭门上方4-6根,以后桥架过线要多一点;
2、要进行二次热镀锌;
3、壁厚不小于2.5mm;
4、管子间距>100mm;(可根据钢筋网的间隔调整)
5、管子两侧出墙100mm,根据不同的墙厚预制预埋管 。(连通口)
6、共用密闭勒的人防预埋管,同一钢板上管子不要太多(热胀冷缩,变形,施工不方便) 。
7、管口要绞丝,便于今后加装堵头 。
【人防水电安装规范要求 人防水电的正确方法】安装注意要点:
1、两侧顶板标高不一致时,以低的一侧为准;
2、门上标高不足,或与通风预埋管等抢标高则:
A:预埋管排一排,中间小管,两侧大管;
B:预埋管排在风管的两侧;
C:排在人防门的侧边;
D:避开人防门上的加强梁 。
3、防爆波电缆井内管子的安装:
垂直安装时同一密闭勒上的预埋管不要多,密闭勒间要留足够的间隙,供水泥砂浆填充及振捣 。

文章插图
电缆(明敷管线)穿围护结构做法:
1、桥架不可直接穿越,要改穿人防预埋管;
2、平战均要使用的电缆或战时使用的电缆必须满足一线一管;
3、仅平时使用,战时拆除的电缆可不要求一线一管
4、临战时(战争爆发前)要根据要求做好防护密闭或密闭处理;
5、平时穿防火分区的电缆要按要求采取防火措施 。
防密措施注意要点:
1、采用专用人防接线盒 。热镀锌材质,盒子盖板壁厚不小于3mm;
2、人防接线盒在人防墙的两侧放置;
3、人防接线盒内不许有接头 。
- 女儿墙高度规范要求有哪些?女儿墙的优缺点有哪些?
- 2021京东双十二促销Logo及使用规范
- 淘宝生活服务市场管理规范变更
- 天猫维修清洁类目管理规范
- 大学生日常行为规范标语
- 2022年京东年货节预售价格规范
- 天猫店铺命名建议 天猫店铺命名规范变更
- 个人房屋出租合同书标准版 房屋出租合同正规范本
- 婚前协议书最简单的正规范本 有效的婚前协议书范本
- 项目合作协议合同模板 合作协议规范范本
特别声明:本站内容均来自网友提供或互联网,仅供参考,请勿用于商业和其他非法用途。如果侵犯了您的权益请与我们联系,我们将在24小时内删除。
