专门为孩子打造的乐园,不出门在家就能攀岩,还有超大的阳光乐园

文章图片

文章图片

文章图片

文章图片

文章图片

文章图片

文章图片

文章图片

文章图片

文章图片

文章图片

文章图片

文章图片

文章图片
对这套房子的改造主要集中于为孩子提供一个舒适开心的成长空间 , 希望孩子能够开心的学习 , 同时方便以后的学习和读书 。 而且业主也希望通过软装上的搭配 , 实现空间的升级 , 在最低的成本中打造一个最能体现业主一家个性的多功能之家 。
专门为孩子打造的乐园 , 不出门在家就能攀岩 , 还有超大的阳光乐园
房屋户型:三室
房屋面积:190平方米
装修预算:55万
设计师:李文伟
主要建材:大理石材、烤漆玻璃、天然木皮、进口耐磨地板、特殊磁漆
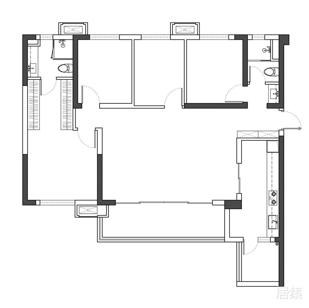
【户型图】
1:家里有业主 , 孩子 , 还有老人偶尔来居住 , 所以需要多个卧室区 , 满足家里人不同的使用习惯 , 每一个空间又都需要足够的收纳区 , 满足不同的储物要求 。
2:集中为孩子打造一个可以开心学习 , 轻松玩耍的家庭氛围和环境 , 让父母和孩子可以一同成长 。
【客厅】
设计重点:打造休闲式公共活动区
客厅改造之后把餐厅和客厅都设计成一体式布局 , 整个空间都被填满 , 避免空间的空旷单调 。 客厅没有陈设电视 , 沙发正对着餐厅 , 打破了传统的布局 , 更多了些个性之美 。
特别声明:本站内容均来自网友提供或互联网,仅供参考,请勿用于商业和其他非法用途。如果侵犯了您的权益请与我们联系,我们将在24小时内删除。
