
文章图片

文章图片

文章图片

文章图片

文章图片

文章图片

文章图片

文章图片

文章图片

文章图片
朋友家第一套房就是在这个设计师手里设计出来 , 当时因为朋友装修费用不是特别充足 , 所以整个房子的装修都是以简约的装修为主 。 这不有了孩子之后两人的经济也有了扎实的基础 , 就想要买套大一点的房 , 把房子给装修好一点 。
4.3m超长悬空柜!弥补空间缺陷 , 让家可以随心变化
朋友家里的房子装修也是找的这个设计师 , 当初的合作是非常的顺畅舒心 , 对这个设计师也比较放心 , 这不用30万就把家里的房子给装修好 , 最让人喜欢的当属于这个超长的悬空柜设计 。
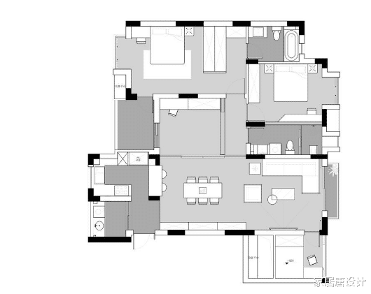
【户型图】
房子100多平算是比较大的面积 , 但阳台它是连接两个卧室 , 在设计的时候设计师就利用这个空间做了一个比较“特别”的设计 。 而且整个设计按照朋友和家人的居住喜好与习惯做好了设计 , 让它能发挥出最大的实用性和功能性 。【厨房】
设计重点:冷暖互补设计
半开放式的厨房设计让视觉效果变得更宽敞明亮 , 墙面是用白色与深蓝色两种颜色搭配在一起 , 让空间形成一种清冷的质感 。 双开门大冰箱内嵌在橱柜中 , 不影响收纳还可以节省空间 。 隔断的吧台上有两盏粉色的吊灯 , 不同灯光迎合不同场景 , 营造不一样的就餐环境 。
【客厅】
设计重点:高颜值清爽装修
客厅的装修是非常的简约 , 但是家具和颜色的选择让空间装点成高颜值的样子 , 而且浅粉色的绒布沙发 , 加上墙面上几幅装饰画的点缀 , 让空间变成温馨浪漫的样子 。
【餐厅】
设计重点:超长悬空柜
餐厅设计时候做了一个超长的悬空柜设计 , 底部有灯光的安装可以增加气氛 , 中间摆放一个简约款式的餐桌能满足吃饭的需求 。 而且悬空柜底部可以收纳鞋子 , 上方开放式的设计可以增加摆放书籍和展示装饰品的效果 , 让空间变得更精致大气 。
特别声明:本站内容均来自网友提供或互联网,仅供参考,请勿用于商业和其他非法用途。如果侵犯了您的权益请与我们联系,我们将在24小时内删除。
