
文章图片

文章图片

文章图片

文章图片

文章图片

文章图片

文章图片

文章图片

文章图片

装修房子 , 光看颜值是不够的 , 如果收纳空间没有规划好 , 入住后家里很容易就变得乱糟糟的 。 本期女主在装修前就考虑到了这个问题 , 所以便让设计师在保证房子宽敞舒适的前提下 , 尽量在家里多定制一些柜子 , 以实现收纳舒适两不误!
这套房子是女主家的第二套房子 , 之前买的首套房面积只有八十多 , 有了孩子以后住起来就感觉有点挤了 , 所以便置换了这套128㎡的大房子 。 对于装修风格 , 女主没有太多的要求 , 简约耐看即可 , 不需要装修得多么奢华 。 下面 , 就让我们一起来欣赏一下女主的新家吧!
▲装修实拍图//设计亮点//
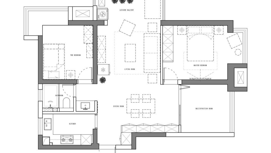
整屋面积约128㎡ , 原户型是四居室 , 格局较为方正 , 南北通透 , 采光和通风性都不错 。 女主是三口之家 , 她说只留两个卧室就可以了 , 剩余两间卧室可以换成其它的用途 。 重点改造设计如下:
①入户玄关定制L型收纳柜 , 兼具收纳储物、展示和换鞋凳的功能 。
②厨房做半开放式设计 , 把部分非承重墙体改为吧台 , 以提升通透性和空间利用率 。
③打通主卧和次卧 , 做大套间设计 , 增设衣帽间 , 提升主卧的储物能力 。
④把入户门左侧的次卧 , 改为独立书房 , 满足屋主夫妻居家办公的需求 。
【等买房了,我也要学她家这样打柜子,实用又好看,没有一丝俗气!】
▲装修平面图玄关
入户玄关的右侧 , 有一部分空间 , 刚好可以用来做玄关柜 。 设计师沿着玄关右侧墙体 , 定制了顶天立地的L型收纳柜 , 可满足入户区域的储物需求 。 柜体和柜门都是原木材质 , 颜色和木地板相近 , 保持了色彩上的统一性 , 视觉感更加整洁 。
▲玄关实拍图玄关收纳柜“有藏有露” , 带柜门的柜子里主要用来放鞋子和生活杂物;部分柜格做了开放式设计 , 方便屋主随手放置钱包和钥匙 , 也能摆一些装饰品 , 以提升回家的仪式感 。 侧面柜子留出了换鞋凳的位置 , 下方是双层鞋架 , 日常换鞋轻松快捷 。
特别声明:本站内容均来自网友提供或互联网,仅供参考,请勿用于商业和其他非法用途。如果侵犯了您的权益请与我们联系,我们将在24小时内删除。
