160㎡轻美式,自带氛围感的灰蓝色,营造浪漫的顶楼跃式!

文章图片

文章图片

文章图片

文章图片

文章图片

文章图片

文章图片

文章图片

文章图片

文章图片

文章图片

文章图片

文章图片

文章图片

文章图片

文章图片

文章图片

文章图片

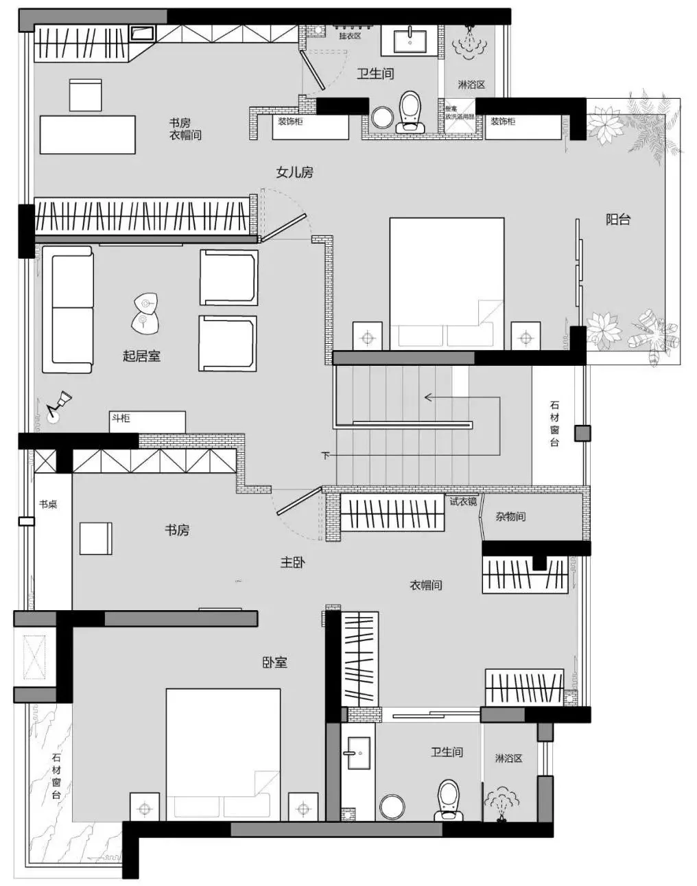
今天小编分享一个三口之家装修案例 , 屋主希望家是无拘无束、自.由的 , 是有感情链接、互动的空间 。 于是设计师打破原有格局 , 重新构建空间 , 合理分配功能 , 让空间紧密相连 。 同时灵活运用材质和色彩 , 营造放松惬意的氛围 。
屋主需求:
1. 女主喜欢简美带有一点浪漫的风格 , 偏好精致的色彩搭配 。
特别声明:本站内容均来自网友提供或互联网,仅供参考,请勿用于商业和其他非法用途。如果侵犯了您的权益请与我们联系,我们将在24小时内删除。
