90年代的老房子,经过改造之后,也能拥有不一样的时尚

文章图片

文章图片

文章图片

文章图片

文章图片

文章图片

文章图片

文章图片

文章图片

文章图片

文章图片

文章图片

文章图片

文章图片

文章图片

房子是90年代的老房子 , 虽然房子的年限比较长一些 , 但周围的设施和环境都比较好 , 又是学区房所以一直让他们喜欢 。 为改善自己的居住环境 , 比起买房子更想要把房子重新装修 , 让家人可以居住在更舒服的环境中 , 没想到30万的改造让老房子焕然一新 。
90年代的老房子 , 经过改造之后 , 也能拥有不一样的时尚
房屋户型:复式
房屋面积:118平方米
装修预算:30万
【90年代的老房子,经过改造之后,也能拥有不一样的时尚】设计师:李文伟
主要建材:大理石材、烤漆玻璃、天然木皮、进口耐磨地板、特殊磁漆
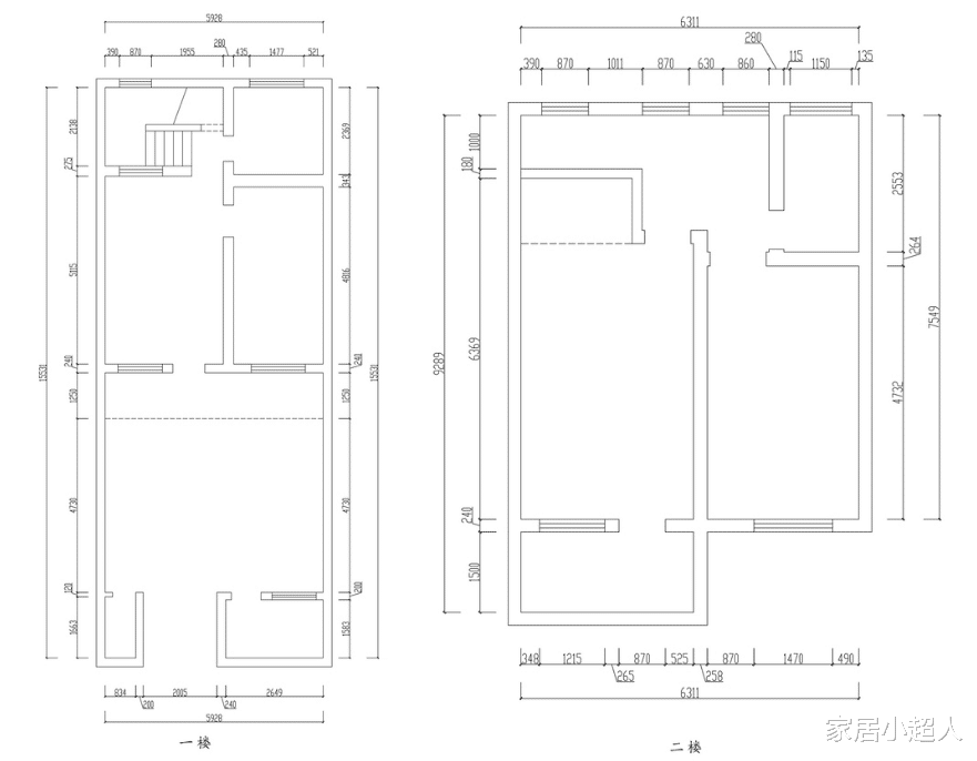
【户型图】
原有100多平的房子能满足家里的入住需求 , 但对于太多功能性的需求就没有办法满足到 , 而且一楼客厅小采光也受到影响 , 所有很多的功能都没有办法满足到 。 而二楼又因为卧室空间狭长会有空间的浪费 , 让日常的使用变得不方便 。
特别声明:本站内容均来自网友提供或互联网,仅供参考,请勿用于商业和其他非法用途。如果侵犯了您的权益请与我们联系,我们将在24小时内删除。
