
文章图片

文章图片

文章图片

文章图片

文章图片

文章图片

文章图片

文章图片

文章图片

文章图片

文章图片

文章图片

文章图片

文章图片
这套老房子已经有了20个年头 , 但是地理位置优越 , 作为学区房是非常不错的选择 , 业主在入手的时候也是考虑到比较方便小朋友上学 , 虽然内部装修比较老旧 , 勉强还能过得去 , 只需要进行重新布局和完善空间功能即可 。
日式极简风让老房实现变身 , 享受超强采光 , 还有宽敞阅读区
房屋户型:两室
房屋面积:98平方米
装修预算:30万
设计师:李文伟
主要建材:大理石材、烤漆玻璃、天然木皮、进口耐磨地板、特殊磁漆
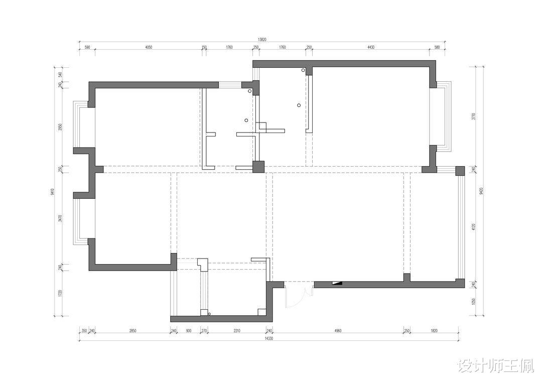
【户型图】
1:北侧空间面积相对比较小 , 舒适度不高 , 空间利用率也非常低 。
2:卫生间面积虽然大 , 但是比较不均衡 , 使用起来也非常的不方便 。
3:主卧动线凌乱 , 也没有合适的储物空间 。
4:厨房面积非常小 , 根本容纳不了两个人同时操作 。
5:玄关是没有收纳区的 , 日常只能把很多杂物堆在地上 。
6:南向阳台影响了客厅的布局 。
1:全屋都设计独立的储物区 , 明确收纳的功能 。
2:走廊增设收纳空间 , 提高利用率 。
3:压缩南向阳台部分空间 , 纳入到客厅中 , 确保空间足够的开阔 。
特别声明:本站内容均来自网友提供或互联网,仅供参考,请勿用于商业和其他非法用途。如果侵犯了您的权益请与我们联系,我们将在24小时内删除。
