双拼户型设计的烦恼,这里有设计干货分享

文章图片

文章图片

文章图片

文章图片

文章图片

文章图片

文章图片

文章图片

文章图片

文章图片

文章图片

- 过往序章
地理坐标:深圳市福田区·东海花园
项目面积:200m2
户 型:双拼
屋 龄:旧房
设计委托:阿龙设计师
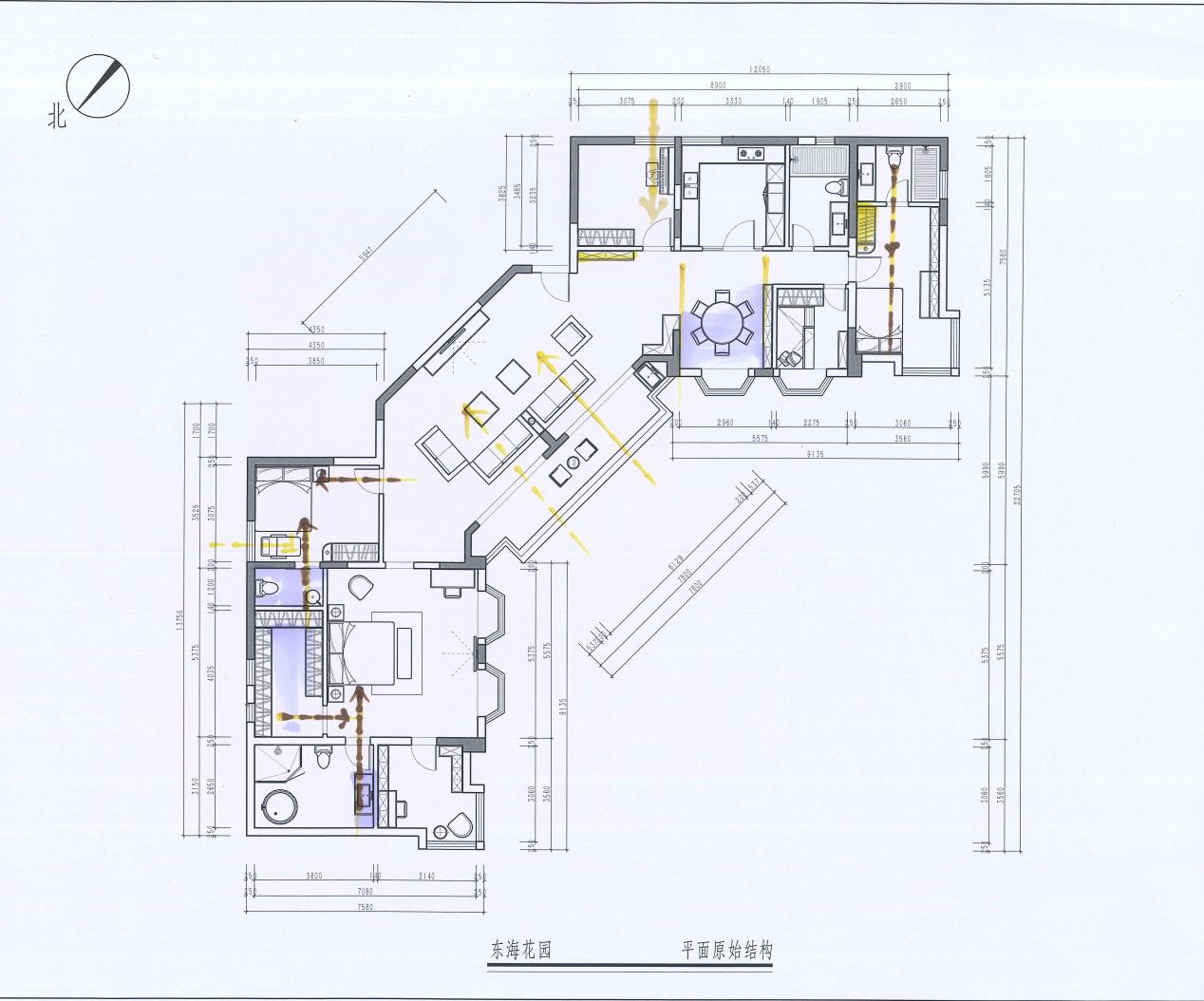
现场掠影结构图
客厅:中间的梁位即是两套房子的分界线 。 现有的装饰过于繁琐 。
餐厅:光线严重不足和杂乱的无章的摆放 。
- 主卧:床头两边的房门对睡眠质量的影响 。
1、客厅路径受阻 , 动线不顺畅 , 主沙发位背光 。
2、主卧室与衣帽间、卫生间的关系不和谐 。
3、餐厅与空间比例不恰当 , 用餐氛围不佳 。
4、各空间普遍采光不足 , 收纳无序 。
现住户型
- 方案沟通
- 分季收纳 , 条理有序
- 平衡客餐厅的比例 , 保留景观阳台 , 加独立洗衣房
- 大主卧 , 如商务套间般的舒适感
- 注重空间的独立性
主选方案
备选方案
特别声明:本站内容均来自网友提供或互联网,仅供参考,请勿用于商业和其他非法用途。如果侵犯了您的权益请与我们联系,我们将在24小时内删除。
