农村这样建房,颜值高还实用,人见人爱

文章图片

文章图片
【农村这样建房,颜值高还实用,人见人爱】

别墅坐北朝南 , 挑空客厅搭配落地窗 , 大大提高采光效率 , 别墅的设计感也上升了一个台阶 。 外墙用真石漆装饰 , 又将别墅整体颜值提升一个档次 。
简约时尚的现代设计风格 , 干净利落的布局理念 , 最大化利用室内空间 , 修建属于你的理想型房屋 , 创造属于你的高质量生活 。
户型基本信息
占地尺寸:13.44m × 12.84m
占地面积:144.89㎡
建筑面积:289.04㎡
建筑高度:9.7m
建筑结构:砖混结构
建筑情况:设6室 1餐厅 2卫 1
平面布局图:
一层
入户左边设老人房 , 充分考虑老人的身体情况和生活习惯 , 避免相互干扰 。
右边有客厅、餐厅和厨房 , 布局简约利落 ,
充分利用空间 , 楼梯下方设洗衣房和杂物间 , 提高房屋使用率 。
二层
客厅挑空 , 提高空气流动性和采光率 , 开阔视野 , 增加房间通透性 , 避免房间昏暗沉闷 。
增设休闲区和阳台 , 闲暇之余约家人朋友玩玩棋牌 , 或者在阳台上吹吹风 , 看看风景 , 晒晒太阳 , 丰富和优化农村生活 。
书房提供办公区或者学习区 , 即使回农村也不耽误工作 , 不影响学习 。
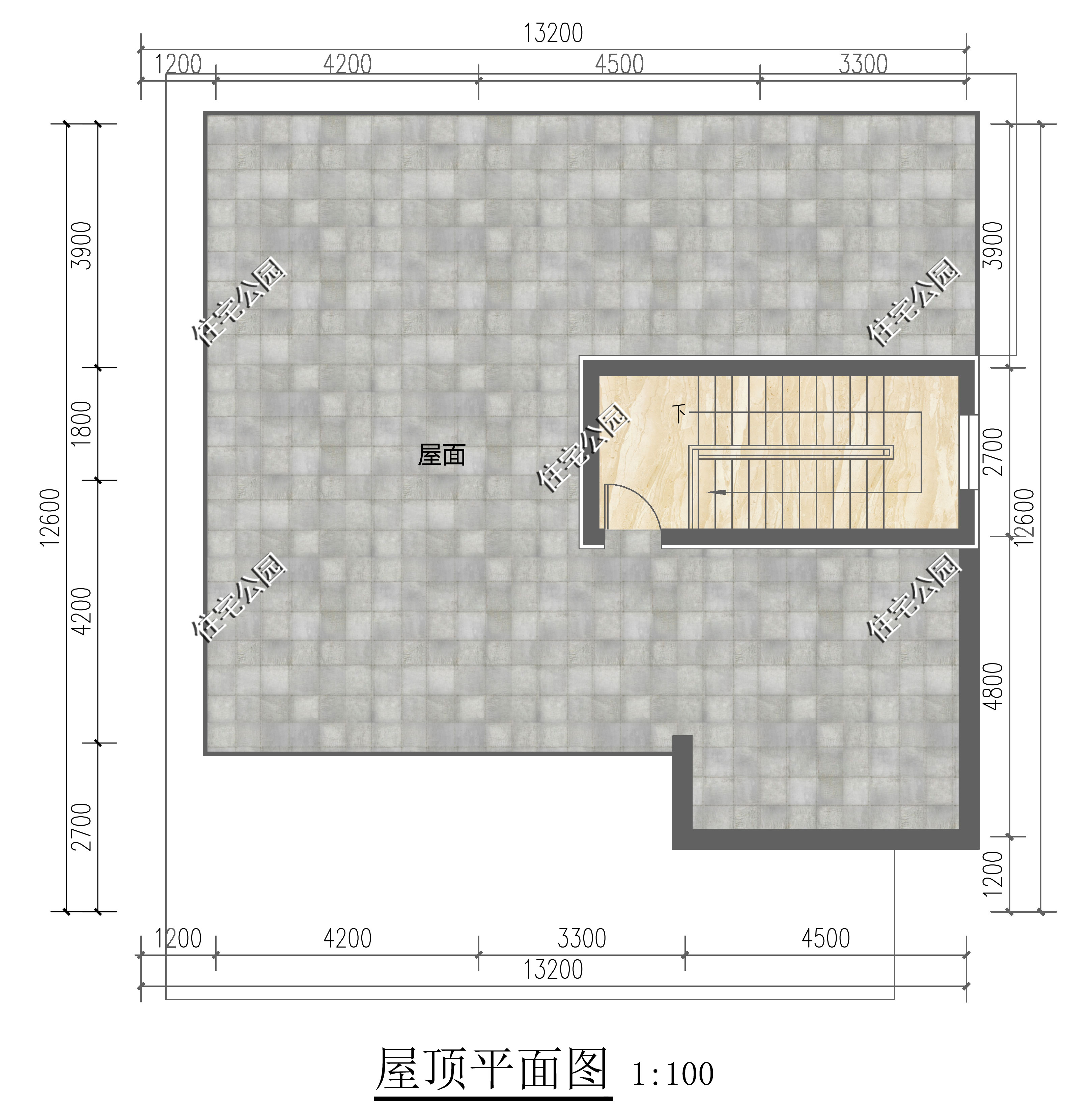
屋顶
屋顶暂未设计 , 种花 , 打造美丽的屋顶花园 , 美化环境;种菜 , 打造绿色有机的小菜园 , 享受健康、安心的农村生活 。
宽敞的屋面 , 业主可以按照自己的需求改造 , 打造更属于自己的生活环境 , 充满灵活性 。
关注本号 , 更多农村自建房户型图欣赏 , 还有建房小知识 , 一手掌握 。
特别声明:本站内容均来自网友提供或互联网,仅供参考,请勿用于商业和其他非法用途。如果侵犯了您的权益请与我们联系,我们将在24小时内删除。
