赞!56岁中年夫妇坚持断舍离6年,74㎡小宅干净清爽,太治愈了

文章图片

文章图片

文章图片

文章图片

文章图片
【赞!56岁中年夫妇坚持断舍离6年,74㎡小宅干净清爽,太治愈了】

文章图片

文章图片

文章图片
对于小户型的房子来说 , 要保持家居的环境整洁 , 除了足够的收纳空间和日常保洁外 , 那就是断舍离和极简主义 。 本期案例一对中年夫妇不爱凑热闹 , 喜欢安静地宅在74㎡小宅里 , 闲暇时 , 男主人邀请好友欢聚 , 女主人插花习艺 , 结合温和的色调 , 充满格调 。 坚持断舍离6年 , 生活非常简单 , 不被物质所累 , 不管在什么情况下 , 都能保持家中干净清爽 , 太治愈了 , 越过越幸福 。
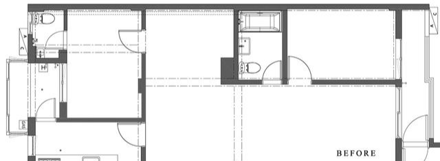
原始结构图
这套小户型房子呈长方形 , 两面采光 , 是三室两厅两卫一厨的格局 。 缺点是中间部位采光不足 , 次卫是暗空间 。
平面布置图
根据屋主的生活习惯和需求 , 基本保留原有的功能布局 , 客厅、餐厅和厨房一字排列 。 增加主卧面积 , 另一部分做储物间使用 。 主卧和储物间采用隐形门 , 让墙面看起来更加完整 。
客厅
客厅拥有落地玻璃门 , 最大限度引进自然光线 , 摒弃多余的造型和饰品 , 在角落布置一组到顶的灰色鞋柜、以及棕色皮革沙发和岩板台面的圆茶几 , 减少了非必要物品 , 回归本质生活 , 空间看起来显大 。 当阳光穿过白色纱帘 , 洒向温润的实木地板、浅灰色的墙面和白色的天花 , 呈现出一种文雅的气质 。 置身其中 , 心随境转 , 时间都变得缓慢 , 让人怡然自得 。
线条简约的蓝灰色铁件和玻璃组成的电视机背景墙 , 也是与多功能房的隔墙 , 让光线互相穿透 , 视野也更加通透 。
餐厅
餐厅布置在客厅和厨房之间 , 墙面采用不同的材质 , 暖灰色大理石纹理薄板砖美观、易清洁 , 而实木餐桌椅沉稳醇厚 , 用手抚摸便能感受到大自然材质赋予的温度感 。 利用天花梁结构转折到砖墙面 , 嵌入L型的条灯 , 弱化了横梁的视觉效果 , 划分了客餐厅的区域 , 也给聚餐增添了一份仪式感 。
在餐桌的另一面墙上 , 安装深色金属板 , 放置展示用品 , 不同的造型演绎出韵律感 。
特别声明:本站内容均来自网友提供或互联网,仅供参考,请勿用于商业和其他非法用途。如果侵犯了您的权益请与我们联系,我们将在24小时内删除。
