走进她家,如沐春风般的清新温暖,家里有个会装修的老婆太幸福了

文章图片

文章图片

文章图片

文章图片

文章图片

文章图片

文章图片

文章图片

文章图片

文章图片

文章图片

文章图片

文章图片

文章图片

不得不承认 , 女性朋友在搭配这件事情上 , 真的比男性朋友要出色很多 , 不论是衣服穿搭还是很繁琐的装修 , 同样做得非常完美 。
走进下面这位重庆夫妇的新家 , 如沐春风般的清新温暖 , 感受到春天的脚步更近了 , 室内大大小小的布置来自女主人 , 她将北欧与日式相整合 , 混搭出十分治愈的家 , 分分钟想让人住进去的想法 , 家里有个会装修的老婆太幸福了 。
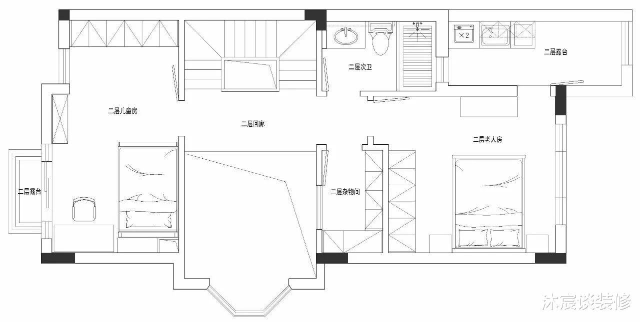
这还是一套别墅 , 相比大平层 , 它的装修更加繁琐 , 需要更全面的规划与布局 , 不论是室内的通风系统还是水路系统 , 甚至排污都要考虑周全仔细 , 好在室内的格局本身不错 , 在没有改动太多的情况下 , 265平方米的三层(还加上负一层)就可以装修 。
每一层是这样来规划的:
负一层是夫妻两的工作区 , 备用客房与储空间;
一层自然是动态空间 , 客厅、餐厅、厨房等LDK一体空间;
二层是休息区 , 两个卧室 , 一个是儿童房 , 另一间是老人房 , 自然还留够储物空间;
特别声明:本站内容均来自网友提供或互联网,仅供参考,请勿用于商业和其他非法用途。如果侵犯了您的权益请与我们联系,我们将在24小时内删除。
