
文章图片

文章图片

文章图片

文章图片

最近在浏览社交媒体的时候 , 发现了一个90后的女孩 , 在网络上晒出了自己的独居小窝 , 然后没用多久就走红了 。
房子虽然不大 , 只有37㎡ , 是一个比较小的户型 , 但是女孩一个人住绰绰有余了 , 并且女孩将家里装修的既干净又治愈 , 非常的让人羡慕 。
女孩说 , 她现在没有男朋友 , 所以有了一套属于自己的房子 , 会让自己更加的有安全感 , 并且还非常的自由 , 下班以后想做什么就做什么 , 无拘无束 。
空闲的时候可以看看电视 , 有时候还会邀请自己的好朋友们到自己家里玩上一整天 , 一个人住特别的爽 , 所以让我们一起来看看女孩的温馨小窝吧!
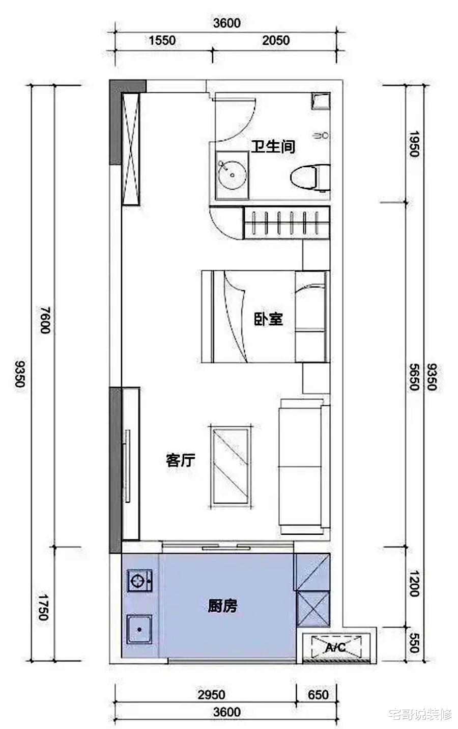
平面布置图
户型整体就是一个长方形 , 图上从下往上分别是厨房、客厅、卧室、卫生间 , 一目了然 , 户型构造比较简单 , 虽然房子不大 , 但是麻雀虽小 , 五脏俱全 。
玄关
玄关是一个不算长的走廊 , 从玄关可以看到房子整体大致的装修风格 , 以白色为主 , 看起来更加的简约干净 。
【90后女孩37㎡小家火了,厨房在阳台,客厅与卧室共用,安全感爆棚】在玄关的左手边上下分别安置着一个柜子 , 下方的柜子可以主要用来当鞋柜 , 在里面放置鞋子 , 上方的柜子是壁挂式的 , 可以说是很好的利用了空间 , 里面可以用来置物 。
两个柜子的整体都是极简的白色 , 这样不但不会显得过于单调 , 反而给人的第一印象就是非常的干净舒适 。
玄关右手边是卫生间 , 再顺着墙壁往里安置着一面壁挂式的全身镜 , 出门之前 , 可以在镜子面前整理整理自己的着装以及仪容仪表 。
卧室
从玄关进来 , 就来到了卧室空间 , 这有别于传统的设计 , 但是小姐姐是一个人独居 , 卧室放在这里也没有什么问题 。
床比较大 , 小姐姐一个人睡绝对是一件非常享受的事情 , 床头旁边放置着一个床头柜 , 可以用来置物 。
卧室旁边就是一个整墙衣柜 , 在外观上要更加的美观 , 旁边还有一层层的置物台 , 不仅时尚还有还很实用 。
客厅
客厅与卧室基本是在同一个空间内 , 沙发旁边就是一张双人床 , 但是这样并没有显得非常拥挤 , 反而还显得更加的温馨 。
沙发是一张三人沙发 , 通体是灰色的 , 十分的耐脏好清洗 , 上面摆放着一些抱枕 。
沙发后面的墙壁上挂着三幅画 , 看起来非常的具有艺术气息 。 沙发面前放置着一张椭圆形的小茶几 , 上面可以放放水果盘 , 茶具等等 。
客厅与厨房之间用一个窗帘进行阻隔 , 因为厨房安置着窗户 , 这样可以更加的具有隐私性 , 给人更多的安全感 。
沙发对面安置着一个壁挂式的电视机 , 电视机下方是一个不落地式的电视柜 , 非常的方便进行清洁打扫 。
特别声明:本站内容均来自网友提供或互联网,仅供参考,请勿用于商业和其他非法用途。如果侵犯了您的权益请与我们联系,我们将在24小时内删除。
