这套90㎡复式三居室,满屏皆是阳刚之气

文章图片

文章图片

文章图片

文章图片

文章图片

文章图片

文章图片

文章图片

文章图片

文章图片

文章图片

文章图片

文章图片
项目信息:
地址:莱昂公馆
面积:90㎡
户型:复式
风格:现代
设计说明:
本案屋主是一个很新潮的90后小伙 , 因为是第一套住房 , 所以有特别多的期待和想法 , 找到我们时 , 直接给到了非常具体的需求:
1. 风格要现代的 , 不要其余色彩 , 黑白灰就好 , 酷就完事了
2. 个人喜欢打电动 , 要有一个电竞房
3. 格局得改 , 特别是厨房 , 弄成开放式 , 这样方便朋友过来开part
4. 房间需求上 , 得保证三房
根据他的需求 , 户型在
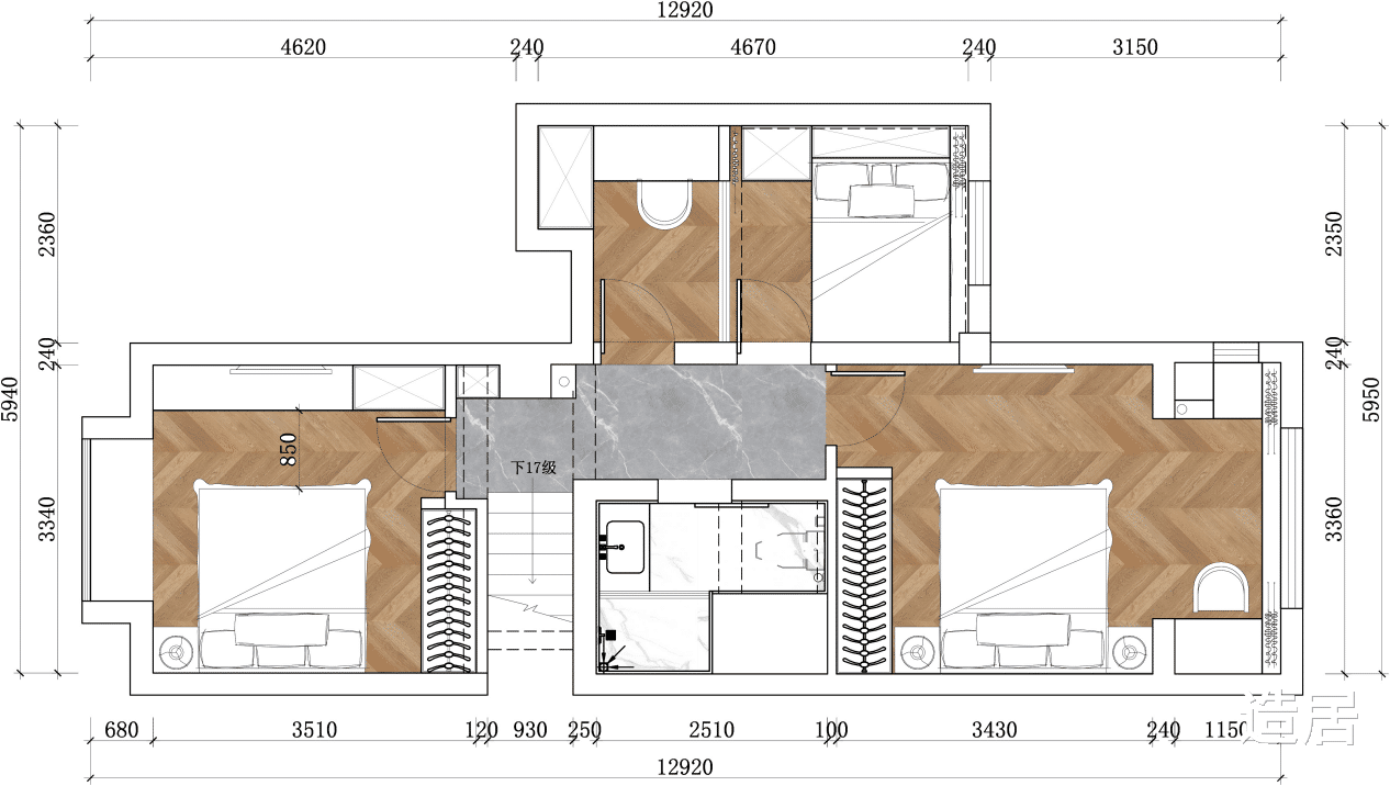
户型图
Before:原始结构图
一楼
二楼
After:平面布置图
一楼
二楼
空间分析
玄关
入户玄关这块 , 原先在侧边是有一个鞋柜位置 , 但实际尺寸不足400mm , 对于一个一米八大高个的男性来说 , 放鞋的进深肯定不够 , 考虑到这个因素 , 同时也为了让进门的视野更加通透明亮 , 于是就将整面墙体进行了拆除 , 扩大鞋柜深度的同时 , 也增加明亮度和通透感 。
鞋柜是定制的 , 选择了比较深沉的胡桃木色 , 中部和底部均为镂空设计 , 增加了灯带照明 , 简洁美观的同时还带有层次感 。
特别声明:本站内容均来自网友提供或互联网,仅供参考,请勿用于商业和其他非法用途。如果侵犯了您的权益请与我们联系,我们将在24小时内删除。
