法式浪漫雅居,给女主人一个童趣世界,专属成人的秘密乐园

文章图片

文章图片

文章图片

文章图片

文章图片

文章图片

文章图片

文章图片

文章图片

文章图片

文章图片

文章图片

文章图片

文章图片
男主人是工作忙碌的IT精英 , 女主人是一名可爱的老师 , 私下里喜欢在家里做手工 , 家里还有一个非常可爱的宝宝 , 父母也会经常过来和小夫妻一起生活 , 在家居风格上女主人比较倾心复古风 , 希望家里能够有独立宽敞的空间让自己可以开心的做手工 , 男主人也能舒适的在家办公 。
法式浪漫雅居 , 给女主人一个童趣世界 , 专属成人的秘密乐园
房屋户型:两室
房屋面积:146平方米
装修预算:50万
设计师:李文伟
主要建材:铁件、石材、人造石、系统柜、木作、油漆、玻璃、仿清水模漆
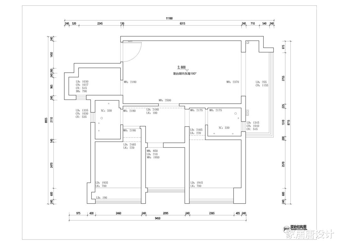
【户型图】
1:原始户型中没有独立的玄关 , 开门之后就看到了客厅 , 没有任何私密性的保证 。
2:考虑到男主人和女主人的私下兴趣 , 需要家里有一个足够宽敞的空间 。
3:主卧要足够的收纳区 。
1:主卧进行了空间布局调整 , 让出衣帽区和浴缸的空间 。
2:拆除部分隔断墙 , 保证采光 , 也让出足够的空间给孩子玩耍 。
3:主卧和次卧之间设计女主人的手工区 。
4:玄关增设了独立的L型储物柜 。
特别声明:本站内容均来自网友提供或互联网,仅供参考,请勿用于商业和其他非法用途。如果侵犯了您的权益请与我们联系,我们将在24小时内删除。
