
文章图片

文章图片

文章图片

文章图片

文章图片

文章图片

文章图片

文章图片

文章图片

文章图片

文章图片

文章图片

文章图片

文章图片

文章图片

文章图片

文章图片
业主是一对非常热爱生活的小夫妻 , 家里还有一只非常可爱的猫咪 , 两人一猫的生活格外的舒适和自由 。 为了然家里的猫咪能够有一个宽敞的空间 , 也为了爱人能够更加舒适的生活 , 业主此次找到设计师希望来一次空间的升级 。
75平方米现代两居室 , 还有猫咪的五层别墅 , 打造房中房
房屋户型:两室
房屋面积:75平方米
装修预算:30万
设计师:李文伟
主要建材:铁件、石材、人造石、系统柜、木作、油漆、玻璃、仿清水模漆
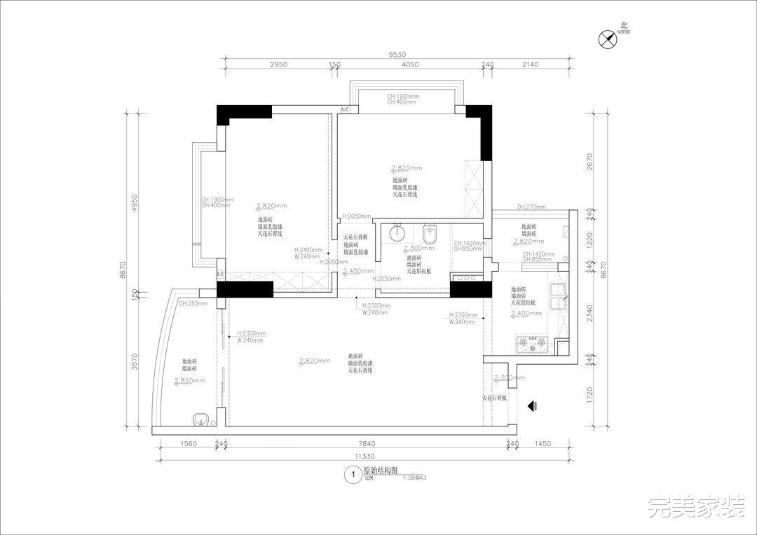
【户型图】
1:原始卫生间的采光不强 , 对于业主希望家里有两个卫生间的需求 , 难度有点大 。
特别声明:本站内容均来自网友提供或互联网,仅供参考,请勿用于商业和其他非法用途。如果侵犯了您的权益请与我们联系,我们将在24小时内删除。
