
文章图片

文章图片

文章图片

文章图片

文章图片

文章图片

文章图片

文章图片

文章图片

文章图片
业主入手的这套房子是用来做婚房使用 , 所以对全屋的要求比较高 , 女主人希望能够有超大的衣帽间 , 男主人希望能够有独立的办公区 , 更要预留出给宝宝独立的玩耍空间 , 充分满足一家三口人未来对生活的不同追求和美好期望 。
88平方米新婚两居室 , 尽显现代雅居的舒适 , 也足够甜蜜和温馨
房屋户型:两室
房屋面积:88平方米
装修预算:30万
设计师:李文伟
主要建材:铁件、石材、人造石、系统柜、木作、油漆、玻璃、仿清水模漆
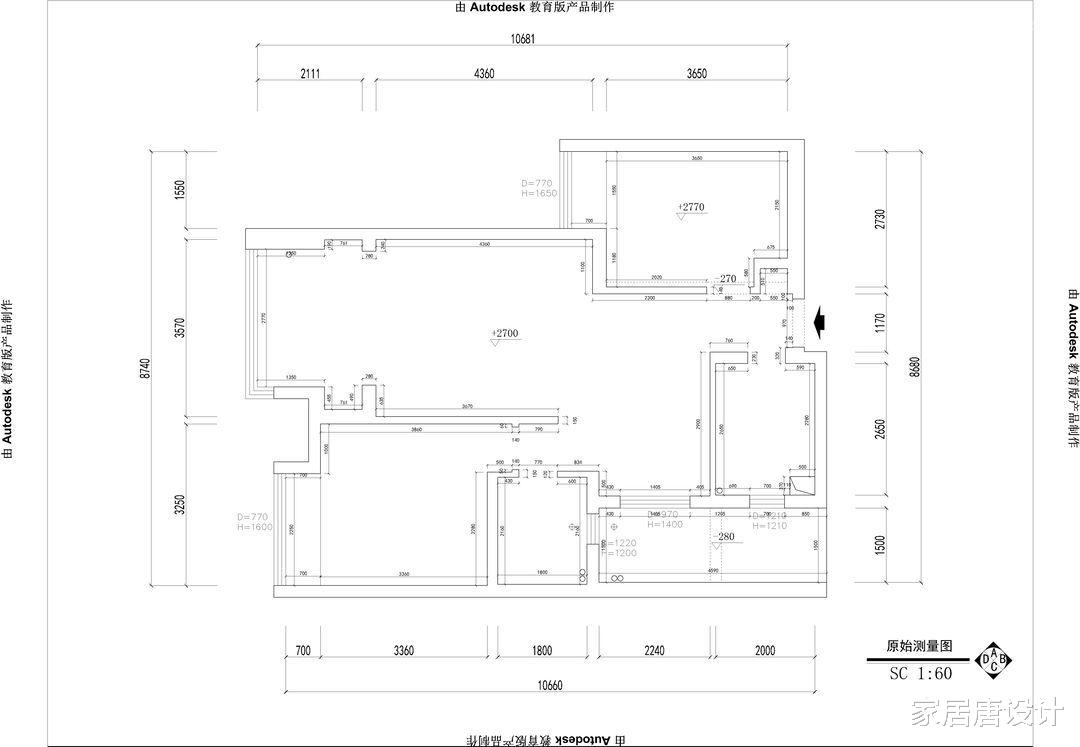
【户型图】
全屋面积虽然只有88个平方 , 但是设计师突破了传统意义上的布局改造 , 对全屋都进行了大胆的规划和改动 。 不仅实现了超大储物空间的要求 , 也设计出一个颜值极高的宽敞烹饪区 , 同时把原来的阳台纳入进活动空间 , 提升全屋的高级感和大气感 。
【玄关】
设计重点:嵌入式玄关柜更加轻盈灵动
玄关区其实并没有独立意义上的划分 , 但是为了保证玄关区应该有的储物功能 , 设计师在背景墙一侧安装了嵌入式的玄关柜 , 轻薄的柜体却有着强大的储物功能 , 灵动的解决了玄关区域的使用要求 。
【客厅】
设计重点:打造视觉亮点
客厅作为全屋的重心区域 , 改动的幅度非常的大 。 电视背景墙选择了文化砖进行重新铺设 , 视觉上更显造型美感 。 沙发背景墙做选择老规矩的墙纸 , 不规则搭配让背景墙之间相互衬托彼此呼应 , 更具层次美感和丰富的造型感 。
坐在客厅也能一眼看到餐厅和玄关 , 视觉上更显空间的开阔和明亮 , 同时减少了小户型空间的局促感和压抑感 。 灵动的空间转角也实现的空间的自然衔接 , 无形中给人更加完整一致的和谐美感 。
【厨房】
特别声明:本站内容均来自网友提供或互联网,仅供参考,请勿用于商业和其他非法用途。如果侵犯了您的权益请与我们联系,我们将在24小时内删除。
