重组大三居,让家居空间变得更加完整,打造舒适的家居环境

文章图片

文章图片

文章图片

文章图片

文章图片

文章图片

文章图片

文章图片

文章图片

文章图片

文章图片

业主小夫妻对这套大三居的要求就是要注重细节的完善 , 希望全屋的风格更加的温馨 , 有足够的储物空间 , 同时也要保证空间的互动感不要过于的孤立 , 空间动线能够更加的自然 , 不需要过于复杂和奢华的元素让空间充分围绕着业主的生活方式 。
重组大三居 , 让家居空间变得更加完整 , 打造舒适的家居环境
房屋户型:三室
房屋面积:150平方米
装修预算:40万
设计师:李文伟
【重组大三居,让家居空间变得更加完整,打造舒适的家居环境】主要建材:铁件、石材、人造石、系统柜、木作、油漆、玻璃、仿清水模漆
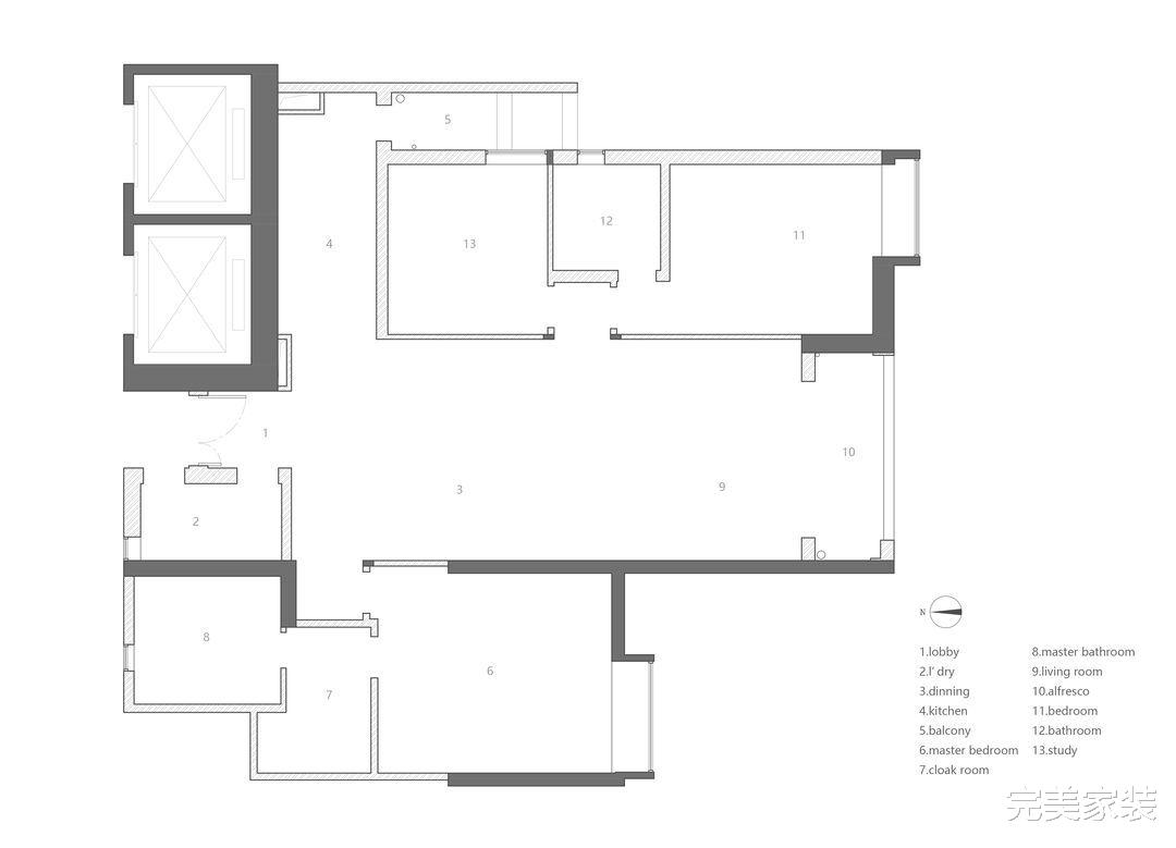
【户型图】
一:空间的功能区之间缺少互动感 , 过于的分散使用起来十分的不便 。
二:全屋的利用率都比较低 , 且缺少足够的收纳空间 。
三:主要的功能区功能十分的不完善 , 尤其是厨房和客厅餐厅非常的不舒适 。
一:改造后的客厅里用电视背景墙做隔断 , 释放出足够的空间联系餐厅和客厅 , 阳台采用拉门让空间的采光得以保障 , 也让空间的空气更加流动 。
二:厨房内部进行功能区的打乱重组 , 利用全新的空间动线重新定义烹饪区的实用功能 。
三:餐厅和厨房之间增设一处独立的吧台实现空间的互动 。
四:书房也增设可以和客餐厅互动的小窗口 。
【玄关】
设计重点:用玄关柜重新定义空间
原始的玄关区只是一个独立的入户区 , 非常的单调 , 改造之后手设计师定制了规格各不相同的橱柜 , 不仅大大提升了玄关的储物能力 , 视觉上也起到了规整的作用 , 利用组合柜体的搭配和色系的碰撞 , 实现了一个充满质感的入户空间 。
特别声明:本站内容均来自网友提供或互联网,仅供参考,请勿用于商业和其他非法用途。如果侵犯了您的权益请与我们联系,我们将在24小时内删除。
