2人居 165㎡
▼

文章插图
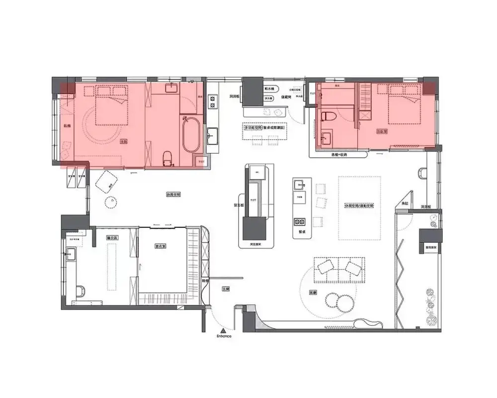
设计师把原来的布局进行了很大的调整,不必要的空间都拆掉,为两夫妻保留了两间带独卫的卧室 。

文章插图

文章插图
妻子的房间用浅绿色装点,卫生间设计了淋浴房的同时,还增添了梳妆台 。

文章插图

文章插图
丈夫房间使用了浅咖色装饰,同样配备的淋浴房里,细心设计了结实的隔板,在淋浴时可以坐着减少体力消耗 。

文章插图

文章插图
男主人房
拆改后客厅也变得更加通透,开放式厨房、沙发区、读书角都能满足两人进行交流和互动 。
当彼此的需要独处的时候,回到房间关上房门,两人可以自在独处,不失为一种永远保鲜的相处方式 。

文章插图

文章插图
以上介绍的家,虽然只是众多生活方式中间的微小一部分,却重新书写了生活的无数种姿态,让我们看见了取舍背后,对于好生活的信念与热情 。
【夫妻长期分床影响运气 夫妻分床睡的风水说法】以上的家,你最喜欢哪个?在评论区告诉我吧,也欢迎分享你的居住故事 。另外,喜欢这篇别忘了点个【赞+在看】
- 教你悟透直通车质量得分那些事
- 淘宝直通车竞争分析功能怎么用
- 天猫618将推“校园分期”
- 双层窗帘盒应该留多少公分 双层窗帘盒150宽够吗
- 摩羯座在2022年2月的学运分析
- 淘宝新店优化技巧实操分享
- 孽缘是什么样子的缘分 风水中孽缘指什么意思
- 繁体网名带符号大全 好听的网名繁体带符号
- 清西陵石牌坊简介特点分析
- 拼多多仅退款话术分享,商家怎么反制?
特别声明:本站内容均来自网友提供或互联网,仅供参考,请勿用于商业和其他非法用途。如果侵犯了您的权益请与我们联系,我们将在24小时内删除。
