花光积蓄买35平的蜗居当婚房,媳妇只花2万块装修,我跪了!

文章图片

文章图片

文章图片

文章图片

文章图片

在上海买了套35平的小房子 , 当初想着租房和还房贷一个道理 , 索性自己买好 , 七拼八凑搞了个首付 , 房贷慢慢还 , 现在看来我的想法是对的 , 房子一买 , 现在几个月妥妥的涨了几十万 , 啊哈哈~
【花光积蓄买35平的蜗居当婚房,媳妇只花2万块装修,我跪了!】能在上海这个寸土寸金的买房 , 还是不错的 , 虽然只是个蜗居 。 装修也温馨又不失大气 。 加油 , 以后会有大房子的 , 现在这样比很多啃老族好 , 为自己点赞!
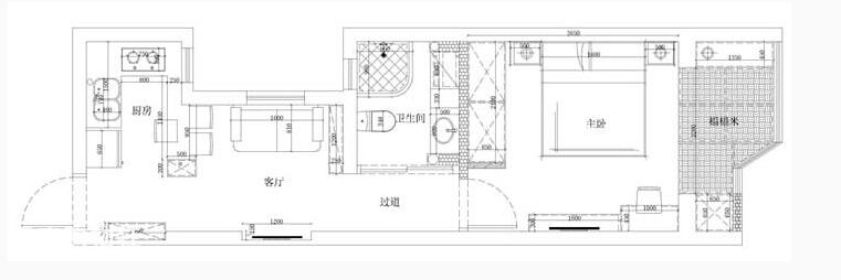
来个户型图 , 略奇葩 。 说奇葩一点也不为过吧 , 整个过道直接贯穿的 。
装修是媳妇一手捯饬的 , 小房子装修简单 , 硬装就花了2万多 , 入户进门直对着卧室 , 风水貌似不太好 , 但也没办法了 。
这是迷你厨房 , 小到只有一人操作 , 切菜的地方都没有 。 只能满足最基本的生活需求 , 其他的不敢想太多 。
没有餐厅怎么办?设计师给设计了一组小通顶柜 , 顺便做了隔板形成小吧台造型 , 这样就有餐厅了 , 小是小2个人足够了 。
这就算客厅了 , 双人沙发 。
客厅过来是个卫生间 , 用了磨砂的推拉移门 。
卫生间里面 , 2平米吧 , 还把洗衣机纳入其中了 。
最大的就是卧室了 , 没做吊顶 , 床 , 衣柜就占了大部分空间 。
衣柜直接木工现场做的 , 空间利用最大化 , 不浪费一点空间 , 原本户型就小小的 , 在浪费以后衣服都没地放了 。
小阳台设计成榻榻米 , 顶部留空 , 脚可以放下 , 上面盯几个隔板 , 放一些书籍 , 这头边也算是一个书房了 。
阳台这边 , 做了一个个储物柜 , 换季的杂物可以放里面 。
本文内容来源于网络 , 如有侵权请联系删除 , 谢谢!
特别声明:本站内容均来自网友提供或互联网,仅供参考,请勿用于商业和其他非法用途。如果侵犯了您的权益请与我们联系,我们将在24小时内删除。
