
文章图片

文章图片

文章图片

文章图片

文章图片

文章图片

文章图片

文章图片

文章图片
随着科技的发展 , 中国房价又到达了一个新高度 。 有的时候二手房也是一个不错的选择 , 经过我们的慎重考虑和完美装修也能够创造出独一无二的生活价值 。 本期我们讲述的是地处芜湖的一个二手学区房 , 面积仅有89平方米 , 对于一家三口的生活来说也是较为方便 。 走进这个学区房 , 我们可以发现整个房子地处重点小区 , 设计较有层次感 , 只要要经过合理的设计装修就能够创造一个新的生活奇迹 。
房子这样改造 , 将简约做到极致 , 简单又大气
房屋户型:两室
房屋面积:89平方米
装修预算:30万
设计师:李文伟
主要建材:铁件、石材、人造石、系统柜、木作、油漆、玻璃、仿清水模漆
女主人较为喜欢简约的现代风格 , 不需要太过华丽的颜色装饰便能够创造出生活最简单的质感 。 整体设计非常的时尚上档次 , 各处简单的线条设计 完美的收纳布置 , 流利的温馨色彩 , 处处的价值感得到了一个完美的体现 。 不仅方便了孩子的上学生活 , 更为整个家庭的生活质量得到了一个进一步的升华 。 这样的房子装修仅需20万左右 , 较为符合现代装修普通标准 。
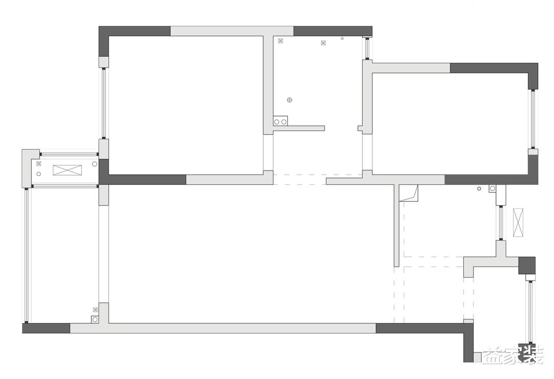
【户型图】
设计重点:部分改造
在原本的户型图设计中 , 学区房89平方米也是较为宽敞的 。 经过合理的设计便能够创造出它最大的价值 。 中国设计师合理的规划和打造 , 他决定对部分面积进行具体化的改造和设计 , 这样才能创造出更大的生活美感 。
1空间一体化 。 设计师将整体空间采用了一体化制作 , 连接不同的层次 , 让整个房子变得更为宽敞 。
2错层设计 。 整体房子家具摆放采用了层次设计 , 不需要过多绚丽的元素 , 便能够体现出完美的层次感 。
3使用效率得到统一 。 多种功能的完美结合 , 整体物品摆放得到了一个进一步的升华 , 整体色彩得到了一个合理的搭配与使用 。
【玄关】
设计重点:留白布置
玄关的设计中 , 设计师采用了极简设计 , 极大空间的留白并没有过多华丽的装饰 , 体现了空间的充沛和空间的层次感 。 米白和白色两种颜色的巧妙搭配 , 仿佛是个长长的走廊 , 让人感受到面积上的空灵 , 这样的设计也是较为巧妙的 。
特别声明:本站内容均来自网友提供或互联网,仅供参考,请勿用于商业和其他非法用途。如果侵犯了您的权益请与我们联系,我们将在24小时内删除。
