37平方米一居室的升级,家有两个大浴缸,还有迷你家庭图书馆

文章图片

文章图片

文章图片

文章图片

文章图片

文章图片

文章图片

文章图片

文章图片

文章图片
设计师其实也是空间的支配者和设计者 , 面对每一个不同的户型设计出每一个不同的方案 , 巧妙的实现生活和家居的结合 , 真正成为掌握空间剧本的导演 , 为业主量身打造一个属于业主的理想家居和生活篇章框架 。
37平方米一居室的升级 , 家有两个大浴缸 , 还有迷你家庭图书馆
房屋户型:一室
房屋面积:37平方米
装修预算:20万
设计师:李文伟
主要建材:铁件、石材、人造石、系统柜、木作、油漆、玻璃、仿清水模漆
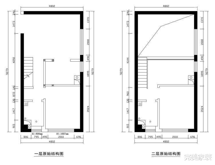
【户型图】
其实全屋不到40个平方 , 而且在有限的空间中布局十分的拥堵和局促 , 大大降低了生活的舒适度 。 厨房是完全封闭式 , 没有足够的通风和采光 , 卧室虽然有两个但是空间面积小到智能容纳一个人走动 。 卫生间2.5平方做不到干湿区的分离 , 日常打理起来更是难度重重 。
【37平方米一居室的升级,家有两个大浴缸,还有迷你家庭图书馆】改造之后设计师把很多非承重墙体进行了利用 , 视觉上和空间的使用上进行了释放 , 同时又进行功能区的重新划分和布局 , 利用动线的衔接来保证各个空间的互动和沟通感 。
【玄关】
设计重点:收纳就是第一要义
入户口改造之后着重对储物空间进行改善 , 专门定制的玄关柜可以收纳常穿的鞋子衣服和各种生活的小物件 , 避免入户口的杂乱无章 , 为了让业主换鞋更加方便 , 在玄关柜中还设计了可以折叠的凳子 , 日常可以收起来避免堵塞空间 , 需要使用的时候拉出来就可以变成一个换鞋凳 。
【客厅】
设计重点:使用功能强大
考虑到全屋的面积比较小 , 所以客厅并不是单一的会客区 , 还承载着储物区娱乐区活动区学习区等超多的实用功能区 , 才能大大提升空间的利用率和实用型 。 一直延伸到二层的开放式置物架 , 也是业主需要的藏书区 , 电视机巧妙的设计在凹槽中 , 避免了空间风格上的突兀 。 沙发摆在中心位置实现就餐区和会客区的联动 。
特别声明:本站内容均来自网友提供或互联网,仅供参考,请勿用于商业和其他非法用途。如果侵犯了您的权益请与我们联系,我们将在24小时内删除。
