
文章图片

文章图片

文章图片

文章图片

文章图片

文章图片

文章图片

文章图片

文章图片

文章图片

文章图片

文章图片

文章图片

文章图片

文章图片
这套二手房的面积比较宽敞 , 但是一共有五口人在里面居住 , 还是比较的局促和压抑 , 业主一家人对空间的使用功能和储物功能要求都比较高 , 还要考虑到三代人不同的生活需求 , 需要各自独立的私密空间 , 如何巧妙的提升空间性能和一家人的生活结合在一起 , 成了设计师改造的最主要的问题 。
现代小众风设计 , 实现三代人生活方式的升级 , 让每个人都爱上生活
房屋户型:两室
房屋面积:189平方米
装修预算:50万
设计师:李文伟
主要建材:铁件、石材、人造石、系统柜、木作、油漆、玻璃、仿清水模漆
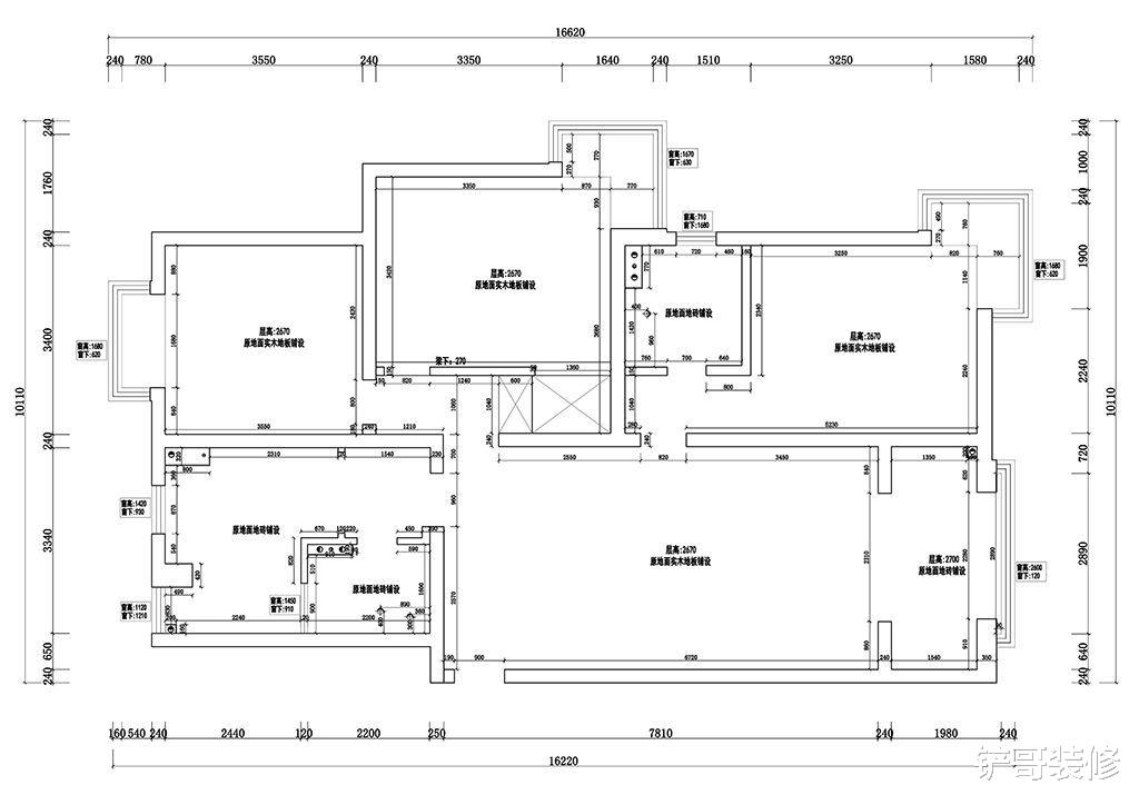
【户型图】
一:再会客区并没有独立的电视背景墙 。
二:走廊的空间浪费比较严重 。
三:厨房和卫生间的布局非常的不合理 , 而且厨房和卫生间的门正对着 , 使用起来也格外的尴尬 。
四:全屋都缺少足够的储物空间 。
一:把主卫的面积进行适当的压缩 , 增加储物柜来提供强大的储物空间 , 让日常的收纳整理拿取都格外的方便 。
特别声明:本站内容均来自网友提供或互联网,仅供参考,请勿用于商业和其他非法用途。如果侵犯了您的权益请与我们联系,我们将在24小时内删除。
