
文章图片

文章图片

文章图片

文章图片

文章图片

文章图片

文章图片

文章图片

文章图片

文章图片

文章图片

文章图片

文章图片

业主其实有着比较明确的改造要求 , 但是之前联系过多家装修公司之后 , 感觉都不是很满意 , 价格也比较的高 , 作为新婚夫妻来说 , 很难承担 。 业主希望能够有一个简洁明快有颇具北欧浪漫气息的环境 , 全屋希望能够以温暖的浅色系为主 , 不要复杂繁琐的元素 , 更希望能够有一个宽敞的活动空间满足一家人的使用需求 。
小户型也能做到如此布局 , 还有超大餐厨区 , 享受甜蜜的二人世界
房屋户型:复式
房屋面积:72平方米
装修预算:30万
设计师:李文伟
主要建材:铁件、石材、人造石、系统柜、木作、油漆、玻璃、仿清水模漆
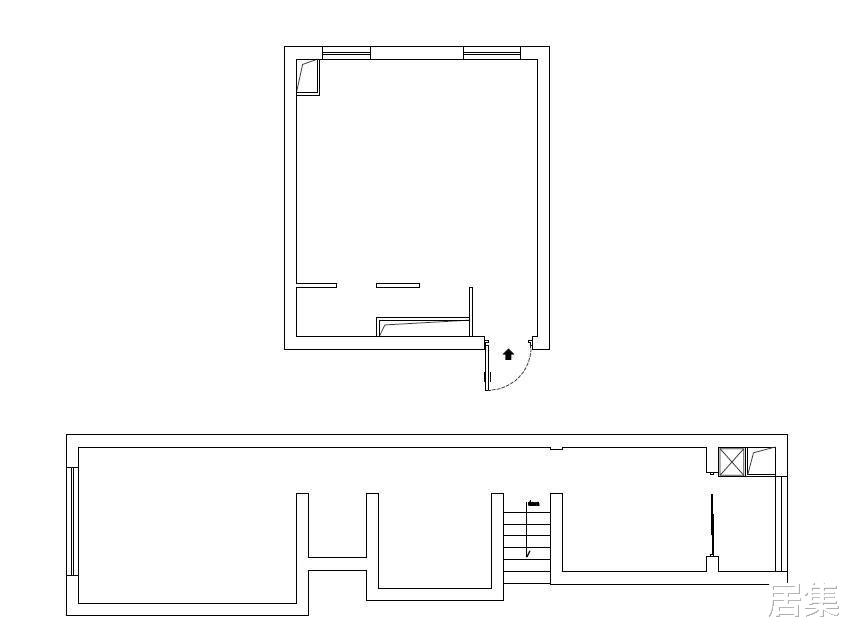
【户型图】
原始户型不存在较大的不合理结构 , 一层主要是业主的烹饪区和活动区 , 但是面积比较局促狭窄无法容纳多人同时使用 。
一:次卧改造成了储物功能强大的衣帽区 , 利用走廊的位置还增设了宽敞的加深鞋柜 。
二:为了让业主的起居生活更加方便 , 卫生间保留了两个 , 可以享受不同的空间舒适感 。
【玄关】
设计重点:木质格栅展现若隐若现的朦胧感
为了保证玄关区和室内空间的独立 , 设计师选择了用木质格栅代替隔断墙体 , 同时又可以作为软隔断使用 , 也能避免空间的笨重和压抑 。 同时打造流畅的空间动线让一楼的布局更加的合理
特别声明:本站内容均来自网友提供或互联网,仅供参考,请勿用于商业和其他非法用途。如果侵犯了您的权益请与我们联系,我们将在24小时内删除。
