
文章图片

文章图片

文章图片

文章图片

文章图片

文章图片

文章图片
今天给大家带来的是一套二手房改造案例 , 原始户型较差 , 采光也不好 , 于是将生活阳台扩大 , 扩大室内空间面积 。 厨房与客厅的共用的墙体整体打开 , 黑色边框玻璃门油烟 , 使整个客厅的采光更好!
面积:115
风格:轻奢风
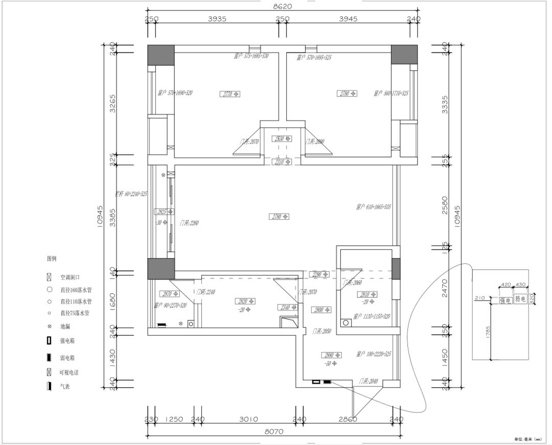
户型图
玄关
玄关玻璃窗设计 , 采光更充足 , 通透明亮 。
客厅
原始户型有一个生活阳台 , 将阳台纳入客厅 , 扩大了客厅空间面积 。 浅灰色背景墙 , 摆上白色电视柜与镂空书架 , 实用极了 。
米色布艺沙发、绿色单人沙发椅、黑色低矮茶几成为客厅一道亮丽的风景线 。 黑色边框玻璃门 , 个性十足 , 空间联系更紧密 。
厨房
厨房L型布局 , 采用黑白配 , 简约大气 , 很有格调 。 窗户面积大 , 采光更充足 。
餐厅
餐厅卡座设计 , 墨绿色餐椅搭配金色桌椅脚 , 十分高端上档次 。 吊灯、羽毛装饰物、装饰画共同点缀空间 。
主卧
蓝色背景墙与窗帘相呼应 , 色彩统一 , 整体的调性简洁而低调 , 营造出一个静谧温馨的睡眠环境 。
儿童房
儿童房以天蓝色硬装搭配粉红色软装 , 马卡龙色调搭配超好看 。 背景墙小小的的装饰物作为点缀 , 与众不同 。
卫生间
卫生间空间不大 , 白色系搭配 , 具有扩大空间的视觉效果 。 壁龛设计+底部悬空 , 收纳更丰富 。
【二手房这么一改造,亲戚进门都羡慕极了,出乎意料的美!】本文内容来源于网络 , 如有侵权请联系删除 , 谢谢!
特别声明:本站内容均来自网友提供或互联网,仅供参考,请勿用于商业和其他非法用途。如果侵犯了您的权益请与我们联系,我们将在24小时内删除。
