
文章图片

文章图片
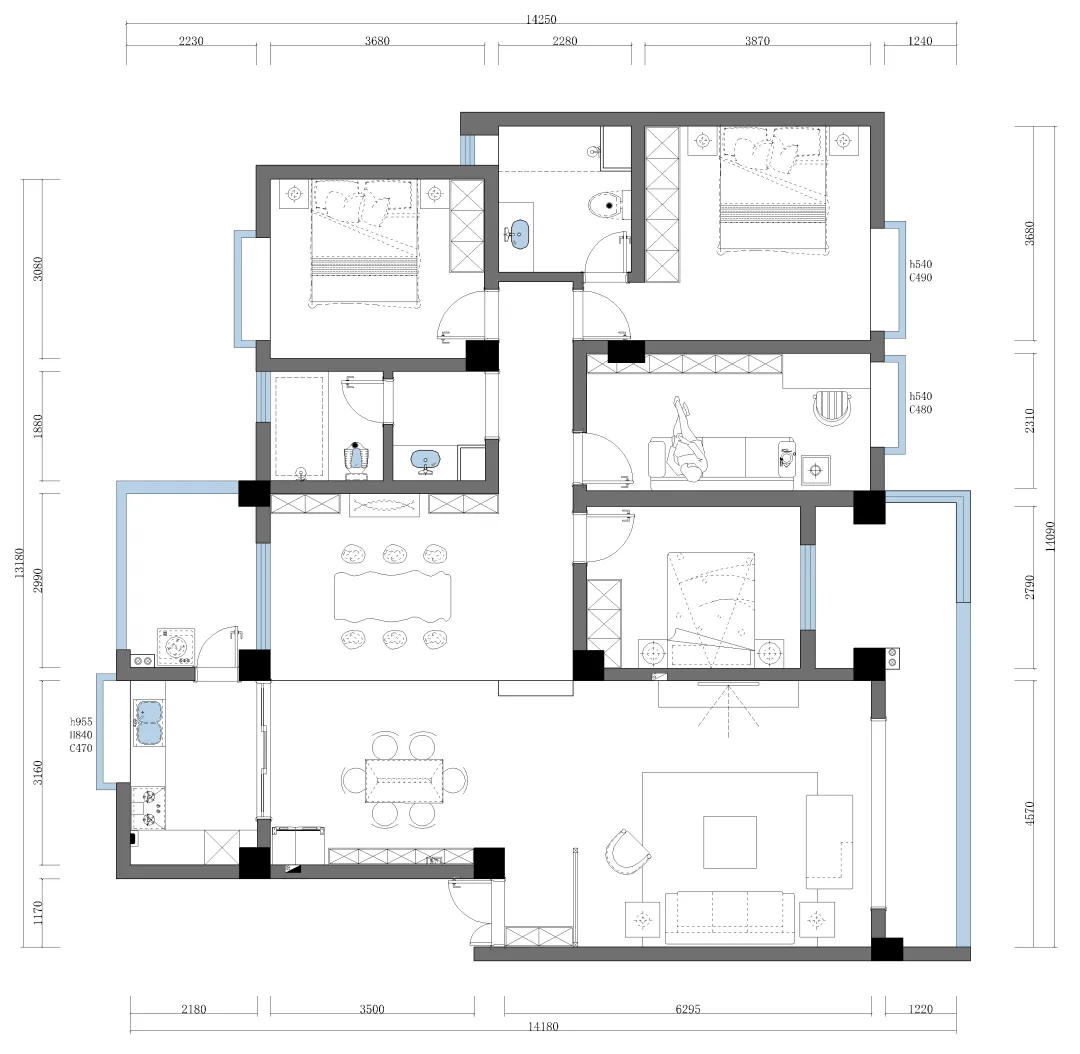
该户型是169㎡的三居室 , 格局方正 , 采光良好 , 功能体系健全 。 设计师在进门处加设一个鞋柜 , 一来主人回家有了仪式感 , 二来体现出玄关与客厅的层次感 。 书房位于三个卧室的中间位置 , 便于家人休息与阅读 。
喧闹城市中的栖息地 , 中式元素的家具、大理石的电视背景墙、沙发墙上悬挂的山水装饰画 , 高雅与沉静都随着设计的点滴细节渗透出来 。
餐桌选择米白方形餐桌 , 简朴吊灯与餐桌上的绿植相映呈现了空间的立体感 , 米白嵌入式柜子实用性与美观性兼得 。
卧室柔和的线条 , 搭配含中式元素的背景墙每个卧室都铺上柔软的地毯增加了房间的温馨气息 。
本期这君庭云邸136㎡现代简约风格就分享到这里了 , 小伙伴们下期见啦!
【【鲁班装饰】滇池星城169㎡新中式风格,传统与现代时尚碰撞的火花。】
特别声明:本站内容均来自网友提供或互联网,仅供参考,请勿用于商业和其他非法用途。如果侵犯了您的权益请与我们联系,我们将在24小时内删除。
