
文章图片

文章图片

文章图片

文章图片

文章图片

文章图片

文章图片

文章图片

文章图片

文章图片

文章图片

文章图片
业主是一位金融行业的小姐姐 , 平常大多数都是一个人住 , 所以一居室的布局没有太多的要求 , 但是一定要有衣帽间 , 因为这毕竟是每个女孩子的心仪之地 , 家中要有临时办公的区域 , 这个区域不需要特别的正式 , 在家临时加个班 , 但也感受不到加班的压力很是重要 , 所以一个人的居住空间也要风情万种 。
76平的一居室空间应有尽有 , 柔情的北欧风 , 浪漫生活的开始 。
房屋户型:一室
房屋面积:76平方米
装修预算:30万
设计师:李文伟
主要建材:铁件、石材、人造石、系统柜、木作、油漆、玻璃、仿清水模漆
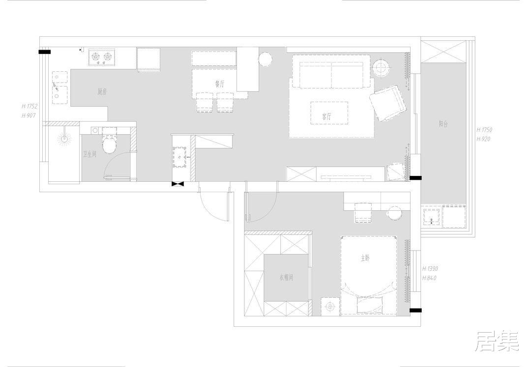
【户型图】
原始户型图
房子的落地在一个老旧小区 , 所以户型的设计是比较局限的 , 下水都是铸铁管 , 楼板也是预制板 , 所以格局的改动上不是很大 , 这样的弊端让设计师的发挥空间也变小了 。
改造户型图
1.因为下水都是铸铁管 , 所以卫生间马桶的位置不能变 , 将卫生间打造成干湿分离的设计 , 马桶区域自然就成了湿区 。
2.干湿分离也要考虑储存空间量 , 将干区域多设置一些收纳的柜子 , 非常方便物品的储存 。
3.卫生间的合理划分让生活的空间更加便利 。
【玄关】
设计重点:
淡紫色非常的浪漫 , 在门厅的墙壁上再安装上一盏暖灯 , 就更加显得温馨美好了 , 因为门厅的空间不是很大 , 所以选用半通透的长虹玻璃做隔断 , 在选用半截的鞋柜 , 这样既不影响光线 , 也不会在视觉上造成局促感 。
特别声明:本站内容均来自网友提供或互联网,仅供参考,请勿用于商业和其他非法用途。如果侵犯了您的权益请与我们联系,我们将在24小时内删除。
