大气简约的公寓,沉稳内涵的现代风格,相得益彰的住宅搭配

文章图片

文章图片

文章图片

文章图片

文章图片

文章图片

文章图片

文章图片

文章图片

文章图片

文章图片

文章图片

文章图片

文章图片

文章图片

文章图片
这是一套整体面积135平方米的现代简约风格的公寓 , 这种设计风格是大多数年轻朋友们深受追捧的艺术风格 。 如此设计不仅让房屋宽阔明亮 , 再结合艺术与科技理念的互相支持 , 大大增加了整体空间上的使用 , 从观感上也得到了大众审美的满足 , 居住在这套高端大气的房屋中 , 也会提升整个家庭氛围感和归属感 , 留下美好的回忆 。
大气简约的公寓 , 沉稳内涵的现代风格 , 相得益彰的住宅搭配
房屋户型:公寓
房屋面积:135平方米
装修预算:30万
设计师:李文伟
主要建材:铁件、石材、人造石、系统柜、木作、油漆、玻璃、仿清水模漆
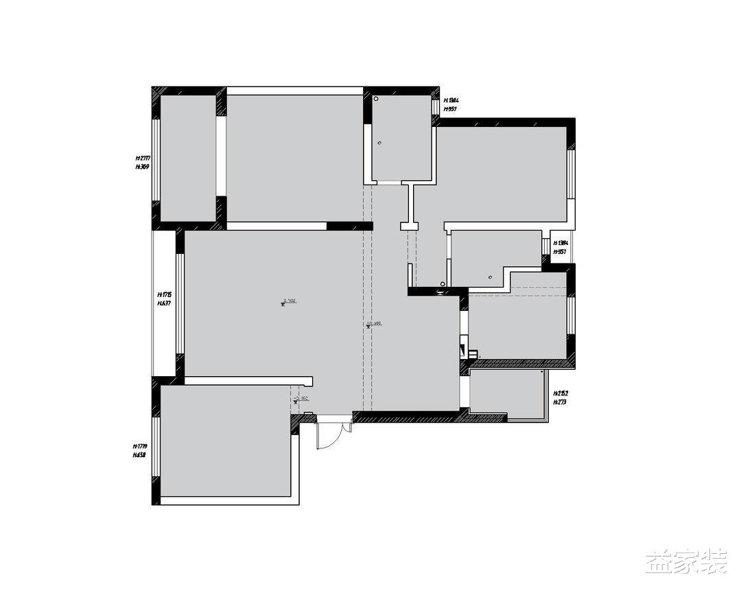
【户型图】
基础户型
客卫与厨房间的拐角多 , 占用空间面积 , 主卧书房与卫生间区域的门太多 , 使空气流通不顺畅 , 很多区域重新规划 , 按照房屋的采光通风 , 为每人打造适合的区域放松休息 。
特别声明:本站内容均来自网友提供或互联网,仅供参考,请勿用于商业和其他非法用途。如果侵犯了您的权益请与我们联系,我们将在24小时内删除。
