173㎡户型空间零散,拆掉7处墙体,这才是一套“满分”大平层吧?

文章图片

文章图片

文章图片

文章图片

文章图片

文章图片

文章图片

文章图片

文章图片

文章图片

文章图片

文章图片

文章图片

文章图片

文章图片
同样一套房 , 拆墙前后真的完全像是两套房 , 你们还真的别不信!当初买金隅南七里这个小区 , 业主就是看中地理位置 , 可拿房后对格局一点也不满意 , 到处都是墙 , 看着真不像大平层 , 装修大胆拆掉7处墙体 , 效果显大又实用 , 升级成为一个满分大平层!
首先说明一下 , 装修拆墙不能瞎动 , 尤其是承重墙!拆改的话动的是非承重墙!
这套房子173㎡ , 半包25万 , 原本的户型除了客厅之外 , 其他空间都很零散 , 非常显小 , 业主很是不满意 。
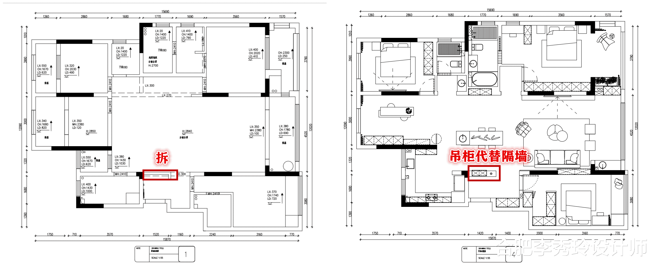
“拆”玄关墙
原本结构入户门和餐厅之间有一堵墙 , 虽然能保护隐私 , 但却严重影响了入户采光 , 越看越鸡肋 。 于是设计师将它拆掉改成吊柜 , 解决储物需求 , 又能遮挡入户隐私 , 一举两得 。
吊柜长度90公分 , 利用天花板悬挂 , 承重问题不用担心 , 内部收纳50双鞋子绰绰有余 , 另外左侧预留缝隙加上底部悬空 , 能很好地解决采光问题 。
入户门右侧还有一个玄关柜 , 除了挂衣区、鞋柜和储物区外 , 还有抽屉可以放些随手物件 。
特别声明:本站内容均来自网友提供或互联网,仅供参考,请勿用于商业和其他非法用途。如果侵犯了您的权益请与我们联系,我们将在24小时内删除。
