法式极简,在古典里重生

文章图片

文章图片

文章图片

文章图片

文章图片

文章图片

文章图片
一个家的舒适度与高级感 , 源自于居住空间由内而外散发出来的气质 。
褪去浮华的法式 , 将古典美融入时尚设计中 , 藏不住的浪漫情怀 , 将平凡的生活变成一个视觉盛宴 。
作品信息
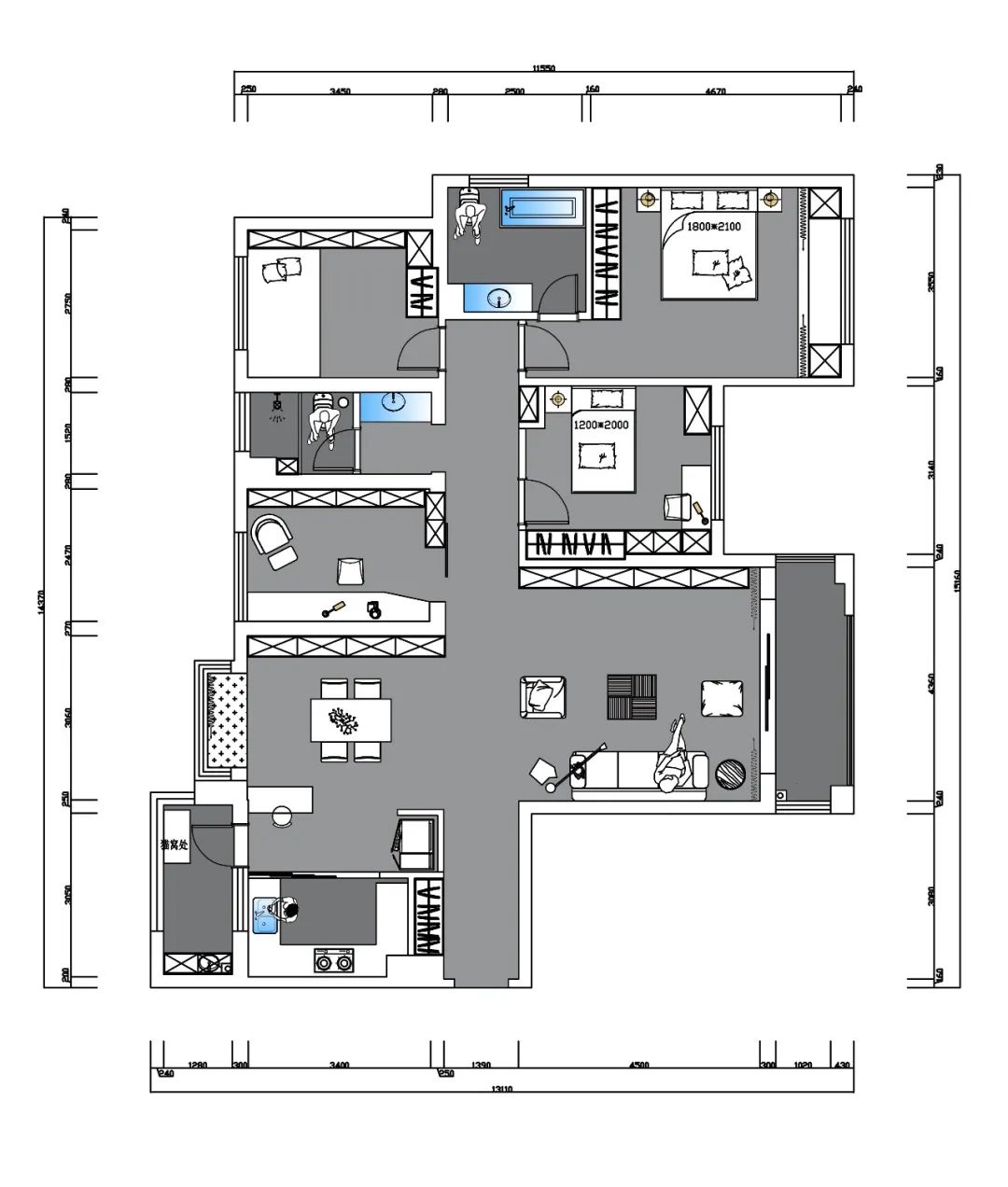
项目风格 Style / 混搭
面积 Area /180㎡
模式 Mode / 全案服务
设计师不拘泥于任何形式 , 通过采用法式的线条和精美的装饰、混合图案和纹理等 , 以独特和优雅的形式融合古典与现代风格 。
● 客厅
客厅的设计 , 彰显着主人的品味 , 白色的沙发 , 柔和流畅的线条 , 缓和空间的硬朗感 , 优雅与浪漫相得益彰 。 能给起伏的心灵捎去一丝平静 , 治愈的力量足以使人产生丰富 , 而细腻的感官体验 。
● 餐厅
餐厨打通做开放式厨房 , 视觉上是空间变大 , 柜体内嵌鱼缸丰富入户视觉效果 , 同时遮挡灶台位置保持空间整洁 , 在组合功能中弱化原材料粗糙性的同时 , 也揭示了原材料的野蛮性 。
● 卧室
主卧被温暖所包裹 , 柔软的床 , 温馨的窗帘 , 以及全屋元素统一的石膏线 , 窗帘盒暗藏灯带增加氛围感 , 简约大气的设计为空间增添了一份稳重 , 同时对于金属元素的巧妙运用 , 又为整个空间注入了灵魂 。
● 书房
【法式极简,在古典里重生】书房空间规划为纵向排布 , 一字型书桌柜与整体空间的风格和谐统一 , 同时背靠一排整墙的玻璃书柜 , 这样既让整个房间摆放显得井井有条 , 同时又有充足的收纳空间 , 在风格设计上保留住宫廷式的优雅与精致 , 舒畅的线条和唯美的造型 , 鎏金色点缀其间 , 彰显空间的富丽堂皇 。
特别声明:本站内容均来自网友提供或互联网,仅供参考,请勿用于商业和其他非法用途。如果侵犯了您的权益请与我们联系,我们将在24小时内删除。
