一个人过,就买套小户型!学她家这样装,简约高级灰太有感觉了

文章图片

文章图片

文章图片

文章图片

文章图片

文章图片

文章图片
图垄者设计:琐碎的生活让很多人选择单身生活 。 一个人生活 , 如何规划自己的生活?很多人应该选择先买房 。 一套小公寓就够了 。 面积取决于自身的经济实力 , 主要是归属感 。 今天分享的案例是这样的 。 当业主30岁时 , 他买了第一套房 , 59.5㎡小户型给青春留下了完美的印记 。 简约高档的灰色装饰 , 理性的图案、动线、色彩和光源配置 , 让整个空间感觉太好了 。
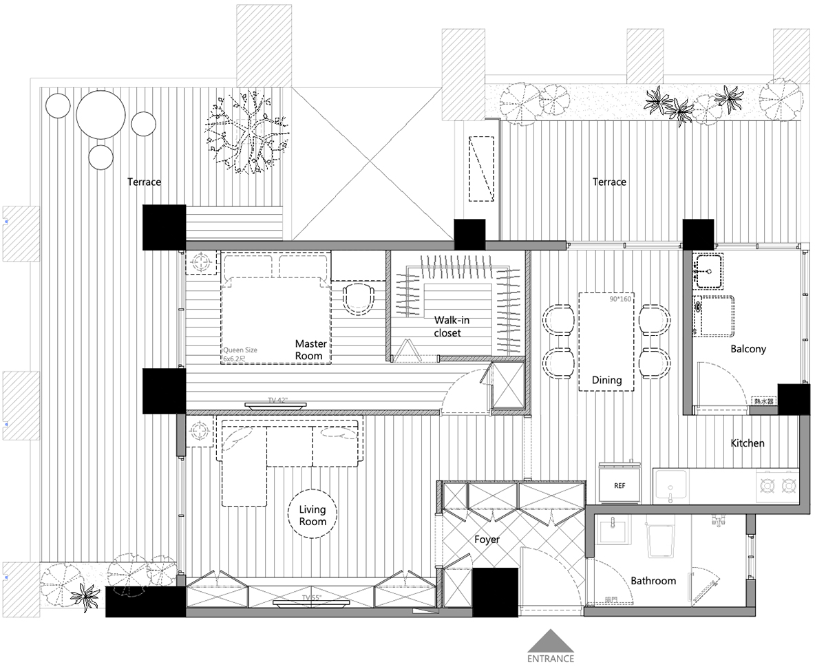
装修平面图 , 59.5㎡一房两厅一厨一卫 , 装修简约高档 , 空间划分清晰 , 收纳功能好 , 质感简约 。
进入门廊 , 经典的黑白交替呈现 , 就像国际象棋盘 , 勾勒出平静而明亮的第一印象 。 美国线板纯白色鞋柜和柔和的浅灰色墙衬托 , 展现出优雅的魅力 。 鞋柜中间空心设计 , 隐藏设计辅助照明 , 装饰和娃娃 , 更期待回家 。
玄关的角落是一道风景线 , 宽敞明亮的客厅简直是大爱 。 鞋柜延伸做储物柜 , 提高家居储物能力 。 储物柜对面是一面镜子 , 既满足了日常穿衣的需求 , 又无形中扩大了玄关空间 。
客厅看门廊 , 延续了门廊的颜色 , 美国电线板变成了踢脚线和门框 , 搭配精致的浅灰色 , 空间更加连贯和统一 。 门框形成了无障碍的连接 , 以拓宽视角 , 加深深度尺度 。 通过不同的地面材料 , 巧妙地划分空间 , 不影响舒适性 。
简单整洁的电视柜 , 中间用染黑木皮消除电视框架 , 黑白形成鲜明对比 , 经典耐用 。 慵懒的法式沙发 , 独特的滑裙设计 , 柔化刚性线条 , 营造迷人柔和的气质 。 落地窗充分发挥了采光优势 , 搭配柔和的白色窗帘 , 充满仙女气息 。
简单的餐厅 , 以青年设计为主题 , 一张独特的桌子 , 古典曲度的桌脚 , 加上手工垂直线的部分 , 创造了一种独特的冲突美 。 墙壁用彩色格子柜装饰 , 几何形状的外观使空间更加活泼 。 清晰柔软的纱帘轻轻地洒在温暖的木地板上 , 营造出温暖轻快的用餐氛围 。
卧室清晰的图案划分 , 勾勒出清晰流畅的移动线条 。 落地窗极大地引入了自然采光 , 通过对称优雅的曲线 , 带来了优雅精致的浪漫氛围 。 床头背景墙采用深灰色调 , 在柔和的空间中注入稳定性 。 床头壁灯 , 摆脱对称设计 , 使空间更有活力 。 简单精致的金属支架 , 温柔而坚定 , 使空间更加精致 。
特别声明:本站内容均来自网友提供或互联网,仅供参考,请勿用于商业和其他非法用途。如果侵犯了您的权益请与我们联系,我们将在24小时内删除。
