
文章图片

文章图片

文章图片

文章图片

文章图片

文章图片

文章图片

文章图片

文章图片

果条件允许 , 谁不希望买个户型方正的大房子呢 , 如果预算充足 , 谁不希望请个专业的设计师来帮自己做下整体规划呢?
但生活总会有这样那样的不如人意之处 , 我们总不能为此而裹足不前 , 等着生活自己变好吧 , 只能先接受它 , 再尽量去做些什么 , 让它变得更好了!
这对小夫妻 , 就是基于此种考虑而买下这套房子 , 并且决定自己装修的 。 虽然面积不大 , 户型也比较渣 , 但能让他们在这座城市有个自己的小家 , 总比白白替房东打工要强许多 , 况且小孩也确实需要一个更好的成长环境 。
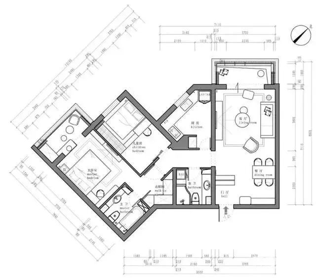
平面布置图
这套房子的套内面积为65平米 , 是个小两居的格局 。 虽然户型整体上看不方正 , 但内部空间其实还是蛮规整的 , 并不需要做太大的调整 , 而他们预算也很紧张 , 所以就决定跳过设计环节 , 自己画个草图 , 请施工队照着做个基础装修 , 其它的就由他们自己做主了 。
玄关
房子原本并没有独立的玄关区 , 一进门 , 就能直接望得到阳台 ,这样的户型 , 虽然很显通透敞亮 , 但也有它的不好之处 , 就是欠缺隐私 。
So , 他们在大门正前方用鞋柜和玻璃墙 , 自己增设了一个隔断出来 , 既避免了开门见底 , 又满足了玄关收纳 , 还不影响原本的通透性 , 蓝色、白色与木色的搭配 , 也显得十分地清爽敞亮 。
玄关
玄关区除了鞋柜外 , 还配有换鞋凳和挂衣钩 , 入户功能十分齐全 。
不过 , 我个人感觉 , 室内墙面的蓝色调 , 太浅了点 , 有点不耐看 , 还很容易脏 。
示例
如果能换成这样带有一点灰度的蓝色 , 会大方许多!
餐厅
餐厅
餐厅周围的装饰也是以蓝色作为主题的 , 搭配白色与木色的餐边柜、餐桌椅 , 有种很小清新的感觉 。
客厅
客厅
特别声明:本站内容均来自网友提供或互联网,仅供参考,请勿用于商业和其他非法用途。如果侵犯了您的权益请与我们联系,我们将在24小时内删除。
