
文章图片

文章图片

文章图片

文章图片

文章图片

文章图片

文章图片

文章图片

文章图片

文章图片

文章图片
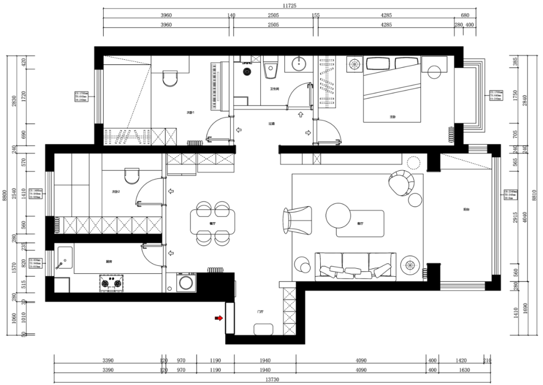
业主一家四人(有一儿一女)居住 , 上一次装修是在十二年前 。 先生希望能保留原始结构 , 局部调整更合理利用空间 , 夫人更注重软装搭配 , 偏向于简约风格 。
房屋信息
房屋面积:106㎡
户型:三室一厅一厨一卫
风格:现代轻奢
本案设计重点在于空间的动线和各个空间的功能性体现上 。 空间动线上 , 无论去往跟哪个空间都没有阻碍 , 整体布局合理流畅 , 在风水上属于顺风顺水的绝佳设计 。
同时 , 每个空间都留有足够的储物功能 , 从玄关、客厅、餐厅、到厨房、卧室、卫生间 , 各个空间都设有符合该空间功能特性的储物柜 。
#01玄关
入门处即是玄关 , 到顶的定制玄关柜 , 柜体腰部掏空 , 方便随手放置包包、钥匙、雨伞等常用物品 , 旁边还贴心的设计了一个换鞋凳 。
#02客厅
客厅整体采光较好 , 地面选择浅灰光泽感地砖 , 运用自然光线的漫反射 , 让整个客厅空间更加明亮干净 。
无主灯设计让空间尽显高级感 , 白色的皮质沙发与极具光泽感的地面相得益彰 。
通顶的大理石纹路电视柜将空间划分的更加整体 , 灯光照射下的摆件光影交错 , 极具艺术感 。
#03餐厅
餐厅嵌入式边柜 , 完美的容纳了洗衣机以及洗衣用品 , 满足收纳的同时又保证了美观性 。
餐椅一抹橙色 , 使得空间不单调 , 餐桌上方轻奢吊灯给整个餐厅添加了高级感 。
#04厨房
厨房的布置非常明朗 , 虽然摆放的物品较多 , 但都井然有序 。 而且吊柜+橱柜的设计给厨房内增添了更多的储物功能 。
特别声明:本站内容均来自网友提供或互联网,仅供参考,请勿用于商业和其他非法用途。如果侵犯了您的权益请与我们联系,我们将在24小时内删除。
